Продається 1-комн. квартира в новобудові, Олексія Вадатурського вул. (Малиновського Маршала вул.), м.Одеса
Одеса, Хаджибейськом, ул. Олексія Вадатурського в (Малиновського Маршала в)
ID 200517
Кімнат
1
Загальна
47 м2
Житлова
17.8 м2
Поверх
10
Поверховість
12
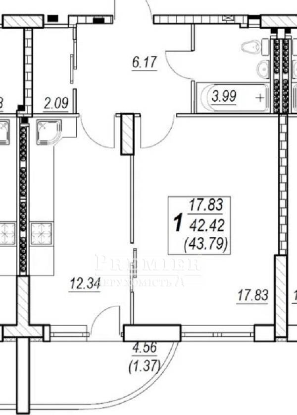
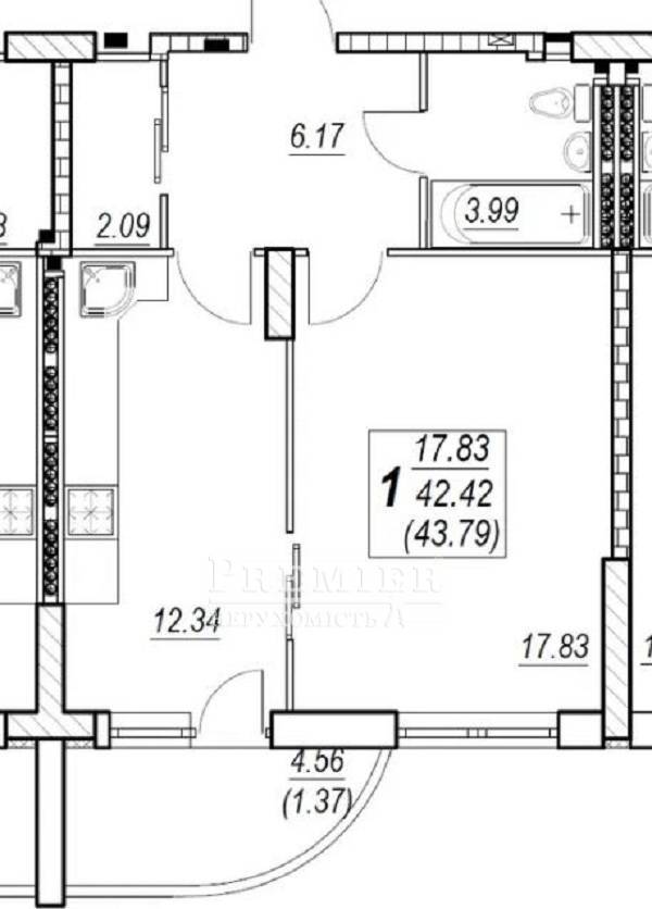
Продам 1-кімнатну квартиру в новому будинку Малиновського району. Загальна площа квартири 43,3 кв.м., кімната 17.8 кв.м., кухня 12.6 кв.м. Із кухні вихід на балкон. Висота стелі 3,0 м. Санвузол суміщений. На підлозі стяжка. У будинку покрівельна котельня, підземний паркінг. На подвір'ї дитячі майданчики. Гарна транспортна розв'язка.
30 000 USD
25 679 EUR
1 271 100 UAH
Філіявул. Ак. Корольова, 33
Відповідальний спеціаліст
вищої категорії Тетяна Аль-Фарра
вищої категорії Тетяна Аль-Фарра
Показати
Додаткові послуги
Прибутковість об'єкту від оренди*
від8344грн/місяць
*Середня ціна при здачі об'єкта в оренду в Хаджибейськом районі
Зміна цін на 1-комн. квартира в новобудові в Хаджибейськом районі
Схожі об`єкти
Однокімнатна квартира
м.Одеса/Хаджибейський/Кропивницького вул.
Цена36 000 USD
Общая40 м2
Цена36 000 USD
40 м2
Комнаты в коммуне
м.Одеса/Хаджибейський/Євгена Танцюри вул. (Петрова Генерала вул.)
Цена21 000 USD
Общая13.9 м2
Цена21 000 USD
13.9 м2
1-комн. квартира в новобудові
м.Одеса/Хаджибейський/Олексія Вадатурського вул. (Малиновського Маршала вул.)
Цена35 000 USD
Общая45 м2
Цена35 000 USD
45 м2
Однокімнатна квартира
м.Одеса/Хаджибейський/Блоку вул.
Цена23 000 USD
Общая38 м2
Цена23 000 USD
38 м2