Продається 1кімнатна квартира, Успенський пров., м.Одеса
Одеса, Центральном, Успенський пров.
ID 202019
Кімнат
1
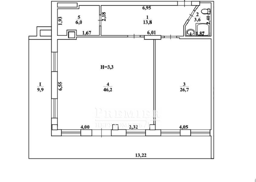
Загальна
106 м2
Житлова
27 м2
Кухня
46 м2
Поверх
10
Поверховість
10
Пропонується до продажу ексклюзивний пентаус з видом на море та парк. Новий житловий комплекс бізнес-класу ЖК Pierre - це малоповерховий будинок у французькому стилі, розташований в історичному центрі Одеси. Квартира вільного планування. Всього 11 хвилин пішки до знаменитого одеського ринку «Привоз» та залізничного вокзалу. Наявність дворівневого паркінгу. Телефонуйте! Поспішайте купити унікальний і диквідний варіант на ринку нерухомості.
233 500 USD
201 784 EUR
10 250 650 UAH
Філіявул. Преображенська, 49/51
Відповідальний спеціаліст
вищої категорії Олена Шевченко
вищої категорії Олена Шевченко
Показати
Додаткові послуги