Продається Студія, Героїв Крут (Терешкової Валентини) вул., м.Одеса

Одеса, Хаджибейськом, ул. Героїв Крут (Терешкової Валентини) в
ID 202431
Загальна
65 м2
Поверх
25
Поверховість
25
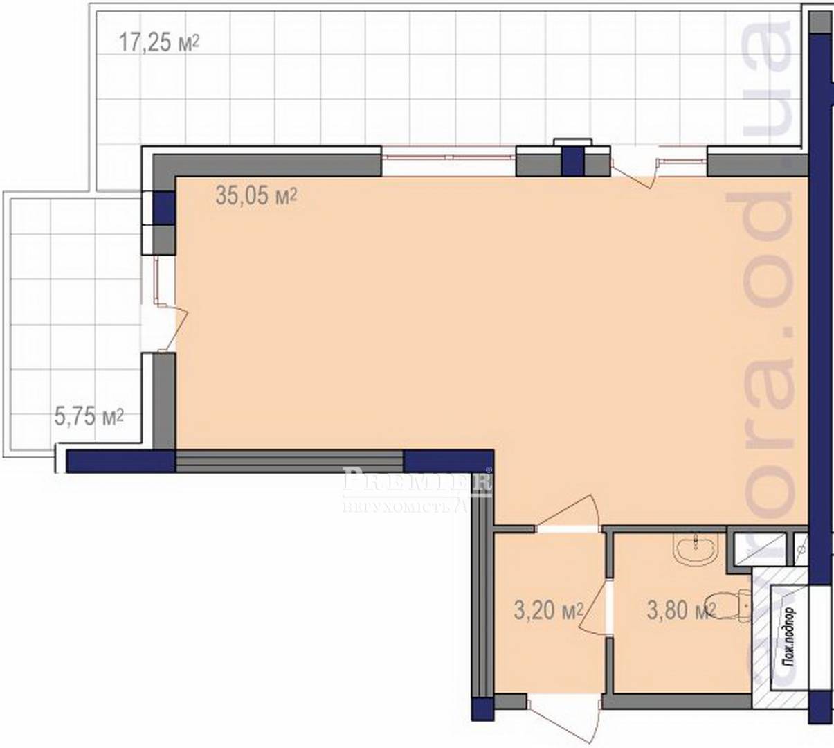
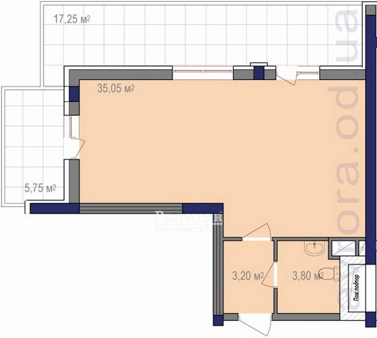
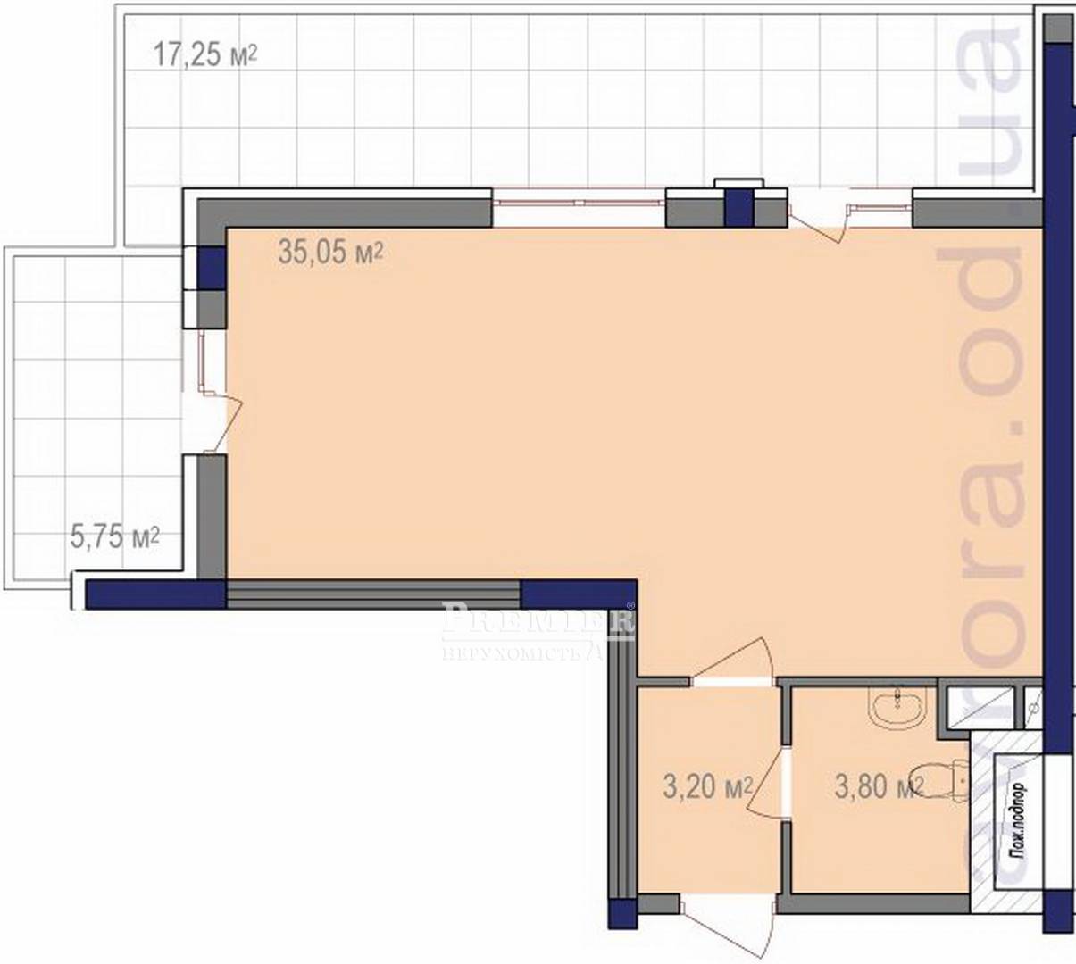
Пропонується до продажу квартира вільного планування у новому житловому комплексі Аврора, що будується поряд із парком Горького. Квартира на 25 поверсі, загальна площа 65 кв (з двома розкішними видовими лоджіями на різні сторони будинку). Квартира передається забудовником підготовленої до ремонту: виконано стяжку, встановлено опалення, металопластикові вікна, надійні вхідні броньовані двері, заведено всі комунікації, висота стелі 2,8 м. Закритий двір та великий паркінг. Черьомушки де розташований будинок – один із найзатишніших, зелених та безпечних районів міста Одеси. За 5 хвилин ходьби від ЖК знаходиться великий парк ім. Горького – відмінне місце для відпочинку, прогулянок та розваг дітей та дорослих. Інфраструктура поруч: АТБ, Сільпо, 7 шкіл, 6 дитсадків, поліклініки, лікарня, пологовий будинок, жіноча консультація, фітнес центр з басейном, лазневим комплексом та кількома спортзалами. Громадським транспортом кілька зупинок у ТРЦ Сіті-Центр, залізничний вокзал та Привоз, півгодини до моря або до центру міста на Дерибасівську та Приморський бульвар.
30 000 USD
25 786 EUR
1 312 500  UAH
USD
EUR
UAH

Філіявул. Космонавтів, 32
Відповідальний спеціаліст Євгеній Найдьонов
Додаткові послуги

Прибутковість об'єкту від оренди*

від12000грн/місяць

*Середня ціна при здачі об'єкта в оренду в Хаджибейськом районі

Зміна цін на cтудії в Хаджибейськом районі

Схожі об`єкти