Продається 4-комн. квартира в новобудові, Зоопарковая вул., м.Одеса
Одеса, Приморський, ул. Зоопарковая в
ID 206571
Кімнат
4
Загальна
150 м2
Житлова
80 м2
Кухня
19 м2
Поверх
10
Поверховість
11
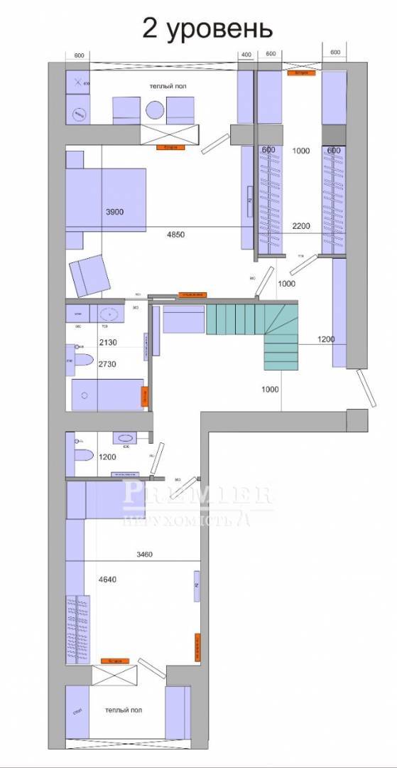
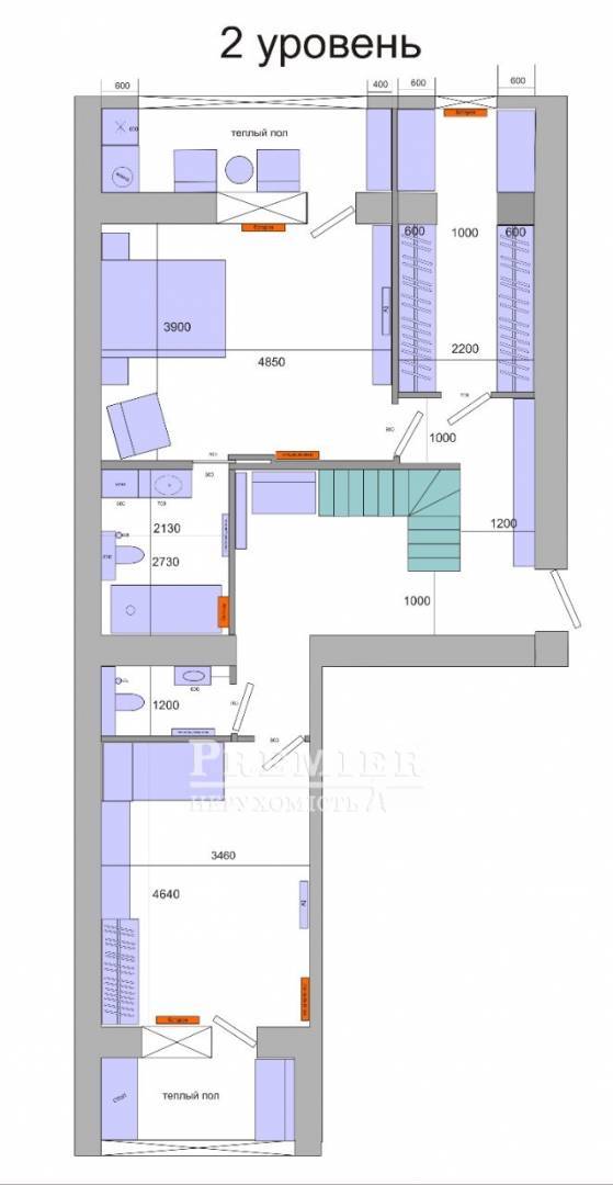
У продажу чотирикімнатна квартира у новому житловому комплексі бізнес-класу. Будинок у найпрестижнішому районі Одеси на вул.Зоопарковій, біля парку Перемоги. Індивідуальне опалення АГВ, двоконтурний котел. Квартира у двох рівнях: 10 та 11 поверхи. Висота стелі 3 м. Квартира двостороння. Вид з вікон у двір (Академмістечко) та Парк Перемоги. Зроблено чорновий ремонт. У кожної кімнати своя лоджія утеплена другим шаром цегли. Перший рівень у квартирі: кухня 19 кв.м. поєднана з вітальнею 23 кв м., лоджія, санвузол гостьовий, кімната 23 кв.м, свій санвузол, комора. Другий рівень квартири: кімната 15.6 кв.м, свій санвузол, лоджія, лоджія, вбиральня 12 кв.м. Всього: чотири кімнати, чотири санвузли, чотири лоджі. Ціна за кв. м - 750 у.о. Між рівнями 10 та 11 поверху сходи ще не встановили. Проект сходів у подарунок. Стіни будинку з екологічного матеріалу – червоної, керамічної цегли. Квартира обладнана всіма інженерними мережами та лічильниками води, електрики та газу. Квартира знаходиться в престижному, затишному районі міста, де у кроковій доступності парк, море, магазини та все необхідне для життя. Відмінний варіант для комфортного життя. Дзвоніть, ми Вам її покажемо.
150 000 USD
128 367 EUR
6 337 500 UAH
ФіліяАртура Савельєва вул.
(Черняховского) 11
(Черняховского) 11
Відповідальний спеціаліст Олена Романенко
Показати
Додаткові послуги
Прибутковість об'єкту від оренди*
від68842грн/місяць
*Середня ціна при здачі об'єкта в оренду в Приморський районі
Зміна цін на 4-комн. квартира в новобудові в Приморський районі
Схожі об`єкти
Чотирикімнатна квартира
м.Одеса/Приморський/Фонтанська дорога вул.
Цена180 000 USD
Общая165 м2
Цена180 000 USD
165 м2
Чотирикімнатна квартира
м.Одеса/Приморський/Педагогічна вул.
Цена170 000 USD
Общая142 м2
Цена170 000 USD
142 м2
Чотирикімнатна квартира
м.Одеса/Приморський/Педагогічна вул.
Цена150 000 USD
Общая160 м2
Цена150 000 USD
160 м2
Чотирикімнатна квартира
м.Одеса/Приморський/Січових стрільців вул. (Леваневського вул.)
Цена165 000 USD
Общая140.7 м2
Цена165 000 USD
140.7 м2