Продається 1-кімн. квартира в новобудові, Софіївська вул., м.Одеса
Одеса, Центральном, ул. Софіївська в
ID 199481
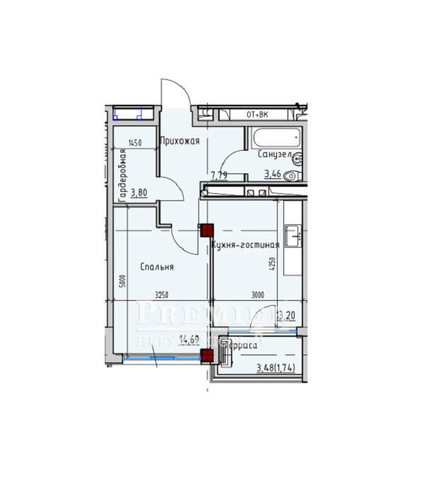
Кімнат
1
Загальна
45 м2
Житлова
15 м2
Кухня
14 м2
Поверх
9
Поверховість
10
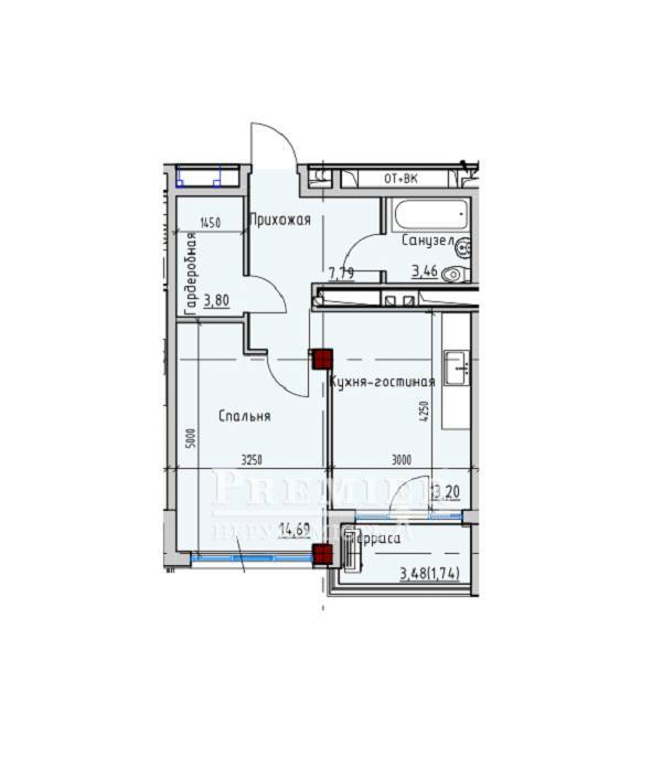
Продаж однокімнатної квартири в новому зданому ультрасучасному комплексі в історичному центрі Одеси. Квартира правильного функціонального планування. Із кухні є вихід на терасу. Є містка вбиральня. З вікна кімнати та з тераси відкривається мальовничий краєвид на центр міста. У будинку є підземний паркінг. Двір без машин. Є прогулянкові зони та велодоріжки. Безпека мешканців забезпечує система відеоспостереження без сліпих зон та система розпізнавання осіб при вході до парадної. На території самого комплексу є абсолютно все необхідне для життя та роботи, включаючи гіпермаркет, відділення банків, кафе та ресторани, центр сімейної медицини, лабораторія, тренажерний та спортивний зали, спа салони, коворкінги. Дитячий садок і школа з IT нахилом біля будинку. Сам будинок розташований поруч із парком та пішохідним бульваром. Це найінноваційніший простір для життя в центрі Одеси. Телефонуйте, погодимо час перегляду.
70 000 USD
59 308 EUR
3 087 000 UAH
ФіліяАртура Савельєва вул.
(Черняховского) 11
(Черняховского) 11
Відповідальний спеціаліст Анна Локшина
Показати
Додаткові послуги
Схожі об`єкти
1-кімн. квартира в новобудові
м.Одеса/Центр/Карантинна вул.
Цена87 570 USD
Общая41.7 м2
Цена87 570 USD
41.7 м2
Однокімнатна квартира
м.Одеса/Центр/Дерибасівська вул.
Цена57 200 USD
Общая26 м2
Цена57 200 USD
26 м2
1-кімн. квартира в новобудові
м.Одеса/Центр/Карантинна вул.
Цена90 510 USD
Общая43.1 м2
Цена90 510 USD
43.1 м2
Однокімнатна квартира
м.Одеса/Центр/Дерибасівська вул.
Цена57 200 USD
Общая26 м2
Цена57 200 USD
26 м2