Продається Под любой вид деятельности, Мельницька вул., м.Одеса
Одеса, Приморський, ул. Мельницька в
ID 207296
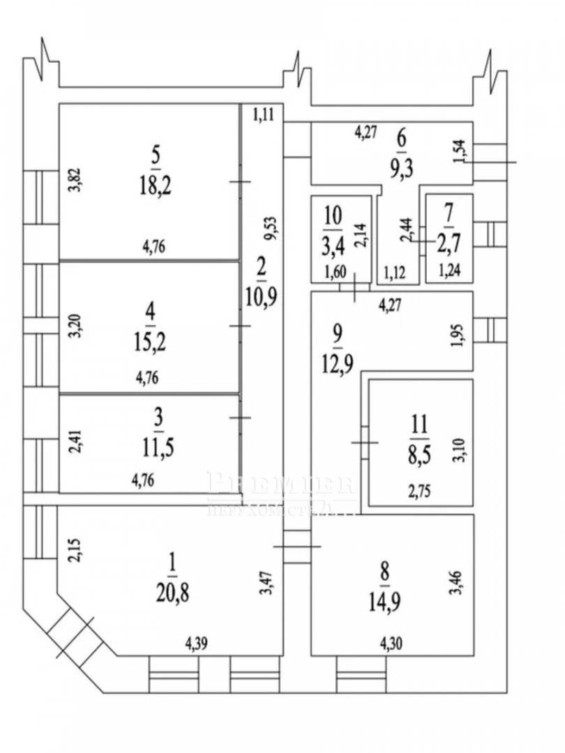
Загальна
133 м2
Поверх
1
Поверховість
3
Продається нежитлове фасадне приміщення в центрі Одеси на вулиці Мельницькій. Загальна площа – 133 кв.м. Відмінно підійде для медичного центру, офісу, салону, магазину чи іншого виду комерційної діяльності. Приміщення розташоване на місці з високою прохідністю, що забезпечує стабільний потік клієнтів. Має фасадний вхід, зручне планування та необхідні комунікації.
140 000 USD
120 082 EUR
5 866 000 UAH
Філіявул. Ак. Корольова, 65
Відповідальний спеціаліст Олексій Архуша
Показати
Додаткові послуги
Прибутковість об'єкту від оренди*
від78310грн/місяць
*Середня ціна при здачі об'єкта в оренду в Приморський районі
Зміна цін на под любой вид деятельности в Приморський районі
Схожі об`єкти
Под офис
м.Одеса/Приморський/Говорова Маршала вул.
Цена100 000 USD
Общая112.7 м2
Цена100 000 USD
112.7 м2
Салон красоты (парикмахерская)
м.Одеса/Приморський/Незалежності вул. (Армійська вул.)
Цена115 000 USD
Общая83 м2
Цена115 000 USD
83 м2
Спортивно-оздоровительное
м.Одеса/Приморський/Сегедська вул.
Цена129 000 USD
Общая220 м2
Цена129 000 USD
220 м2