Продається 2кімнатна квартира, Бориса Литвака (Заславського) вул., м.Одеса
Одеса, Центральном, ул. Бориса Литвака (Заславського) в
ID 207836
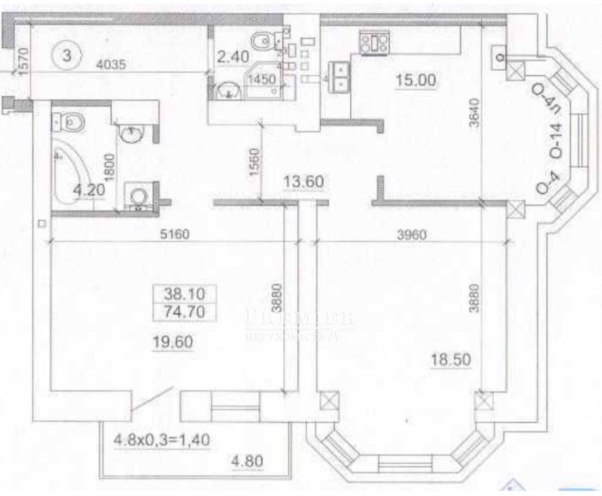
Кімнат
2
Загальна
74 м2
Житлова
38 м2
Кухня
15 м2
Поверх
5
Поверховість
10
У продажу затишна, тепла двокімнатна квартира у новому зданому будинку Преміум класу. Будинок збудований з червоної цегли, товщина зовнішніх стін 70см, німецький металопрофіль на вікнах, горизонтальне розведення труб, дві лінії підключення електрики-відсутність світла немає. Будинок малоквартирний. Повна шумоізоляція. Функціональне планування. Статус від будівельників. У квартирі заплановані дві спальні, простора кухня-готель з величезним еркером, два санвузли. Висота стелі 3,0м. З вікон відкривається чудовий краєвид на місто. Опалення індивідуальне, двоконтурний газовий казан. Європейська система кондиціювання. Відеоспостереження та охорона. Підлоги та сходи в парадних виконані з граніту. Двір викладено гранітною бруківкою. Зручне розташування будинку, у кроковій доступності всі визначні пам'ятки Одеси, сквери, парки, історичний центр, пляжі, море. У комплексі є власний англійський дворик. Відмінний варіант для комфортного життя. Телефонуйте, ми організуємо показ.
150 000 USD
90 000 USD 177 128 EUR
76 216 EUR 6 345 000 UAH
3 807 000 UAH ФіліяАртура Савельєва вул.
(Черняховского) 11
(Черняховского) 11
Відповідальний спеціаліст Олена Романенко
Показати
Додаткові послуги
Схожі об`єкти
Двокімнатна квартира
м.Одеса/Центр/Дерибасівська вул.
Цена100 000 USD
Общая56 м2
Цена100 000 USD
56 м2
Двокімнатна квартира
м.Одеса/Центр/Дерибасівська вул.
Цена100 000 USD
Общая50 м2
Цена100 000 USD
50 м2