Продається 2-комн. квартира в новобудові, Профспілкова вул., м.Одеса
Одеса, Хаджибейськом, ул. Профспілкова в
ID 209127
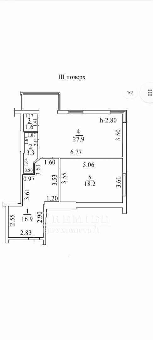
Кімнат
2
Загальна
68 м2
Житлова
28 м2
Кухня
18 м2
Поверх
3
Поверховість
11
Продається 2-кімнатна квартира на 3 поверсі 11-поверхівки в тихому районі, в парковій зоні. Новий сучасний житловий комплекс комфорт класу в масиві Черемушки. Будинок введений в експлуатацію. Загальна площа квартири 64.1 кв.м. Стан від будівельників- квартира підготовлена до ремонту: виконана стяжка, встановлені опалення, поміняні на якісні металопластикові вікна (енергозберігаючі найдорожчі комерлінг , міняли для себе), надійні, вхідні броньовані двері. Заведені всі комунікації. Висота стелі 2,8 м. Закрита територія, що охороняється, консьєрж на вході. В будинку та поряд магазини, торгові центри, ринки, кафе, салони краси, медичні та освітні заклади, спортивні та дитячі майданчики. Отримайте ключі, зробіть на свій смак ремонт та дозвольте собі жити в престижному районі в новій сучасній квартирі!
58 300 USD
50 254 EUR
2 439 855 UAH
Філіявул. Ак. Корольова, 33
Відповідальний спеціаліст
вищої категорії Володимир Нечипоренко
вищої категорії Володимир Нечипоренко
Показати
Додаткові послуги
Прибутковість об'єкту від оренди*
від9834грн/місяць
*Середня ціна при здачі об'єкта в оренду в Хаджибейськом районі
Зміна цін на 2-комн. квартира в новобудові в Хаджибейськом районі
Схожі об`єкти
Двокімнатна квартира
м.Одеса/Хаджибейський/Бабаджаняна Маршала (Рекордна) вул.
Цена69 000 USD
Общая80 м2
Цена69 000 USD
80 м2
Двокімнатна квартира
м.Одеса/Хаджибейський/Липи Івана і Юрія вул. (Гайдара)
Цена50 000 USD
Общая60 м2
Цена50 000 USD
60 м2
Двокімнатна квартира
м.Одеса/Хаджибейський/Сосюри вул.
Цена52 500 USD
Общая65 м2
Цена52 500 USD
65 м2
Двокімнатна квартира
м.Одеса/Хаджибейський/Бреуса Якова вул.
Цена65 000 USD
Общая94.6 м2
Цена65 000 USD
94.6 м2