Продається Будинок дача, Петропавлівська вул., Фонтанка
Одеська обл. / Фонтанка / ул. Петропавлівська в
ID 209779
Кімнат
3
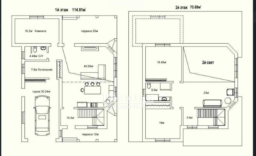
Загальна
185 м2
Житлова
65 м2
Поверховість
2
Ділянка
8 соток
Вода
Водопровод
Пропонується до продажу двоповерховий будинок у першій Фонтанці. Загальною площею 185 кв.м, побудований 2024 (готовий під чистову обробку - можна створити інтер'єр під свій смак). Вікна металопластикові, світло заведено 3 фази, вода заведена. Ділянка правильної форми ( 25 × 32 ) - зручна для планування, огороджена парканом. Поруч у пішій доступності ТЦ Рів'єра, море.
115 000 USD
98 317 EUR
5 083 000 UAH
Філіявул. Сахарова 24
Відповідальний спеціаліст
вищої категорії Ірина Коршикова
вищої категорії Ірина Коршикова
Показати
Додаткові послуги
Схожі об`єкти
Будинок дача
Одеська. обл./Одескій район/Сичавка/Філатова вул.
Цена75 000 USD
Общая240 м2
Участок25соток
Цена75 000 USD
25 соток
Будинок дача
Одеська. обл./Одескій район/Лиманка (Мизикевича)/Арцизька вул.
Цена169 000 USD
Общая180 м2
Участок7соток
Цена169 000 USD
7 соток
Будинок дача
Одеська. обл./Одескій район/Бурлача Балка/Чорноморська дорога - ...
Цена100 000 USD
Общая130 м2
Участок0.1соток
Цена100 000 USD
0.1 соток
Будинок дача
Одеська. обл./Одескій район/Молодіжне/4 лінія (3 Масив)
Цена75 000 USD
Общая103.15 м2
Участок8.2соток
Цена75 000 USD
8.2 соток