Продається 2-комн. квартира в новобудові, Лесі Українки (Гагаріна) просп., м.Одеса
Одеса, Приморський, просп. Лесі Українки (Гагаріна)
ID 210259
Кімнат
2
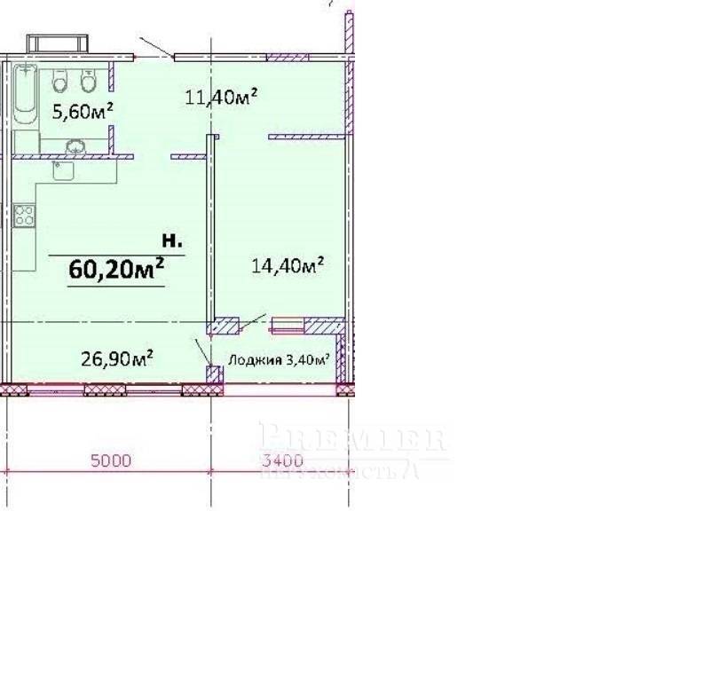
Загальна
60 м2
Житлова
27 м2
Кухня
14 м2
Поверх
14
Поверховість
25
Продається простора квартира в новому житловому комплексі біля моря.
Загальна площа — 60 м². Планування: кухня-студія та окрема спальня. Є можливість перепланування у повноцінну двокімнатну квартиру. Застеклена лоджія.
Квартира у стані від забудовника, що дозволяє зробити ремонт на свій смак. Встановлено автономне опалення.
Сучасний комфортабельний житловий комплекс розташований поблизу Французького бульвару — лише 10 хвилин пішки до пляжу та Траси здоров’я. Поруч парк, університети, супермаркети та кінотеатри. Розвинена інфраструктура та близькість до моря роблять цю пропозицію особливо привабливою як для проживання, так і для інвестування.
Загальна площа — 60 м². Планування: кухня-студія та окрема спальня. Є можливість перепланування у повноцінну двокімнатну квартиру. Застеклена лоджія.
Квартира у стані від забудовника, що дозволяє зробити ремонт на свій смак. Встановлено автономне опалення.
Сучасний комфортабельний житловий комплекс розташований поблизу Французького бульвару — лише 10 хвилин пішки до пляжу та Траси здоров’я. Поруч парк, університети, супермаркети та кінотеатри. Розвинена інфраструктура та близькість до моря роблять цю пропозицію особливо привабливою як для проживання, так і для інвестування.
40 000 USD
33 975 EUR
1 658 000 UAH
Філіявул. Ак. Корольова, 65
Відповідальний спеціаліст Олексій Маньковський
Показати
Додаткові послуги
Прибутковість об'єкту від оренди*
від17059грн/місяць
*Середня ціна при здачі об'єкта в оренду в Приморський районі
Зміна цін на 2-комн. квартира в новобудові в Приморський районі
Схожі об`єкти
Двокімнатна квартира
м.Одеса/Приморський/Говорова Маршала вул.
Цена52 000 USD
Общая43 м2
Цена52 000 USD
43 м2
Двокімнатна квартира
м.Одеса/Приморський/Сегедська вул.
Цена50 000 USD
Общая42 м2
Цена50 000 USD
42 м2
Двокімнатна квартира
м.Одеса/Приморський/Довженка вул.
Цена45 000 USD
Общая43 м2
Цена45 000 USD
43 м2
Двокімнатна квартира
м.Одеса/Приморський/Фонтанська дорога вул.
Цена50 000 USD
Общая58 м2
Цена50 000 USD
58 м2