Продається 1-комн. квартира в новобудові, Вільямса Ак. (ЖК Акварель) вул., м.Одеса
ID 211949
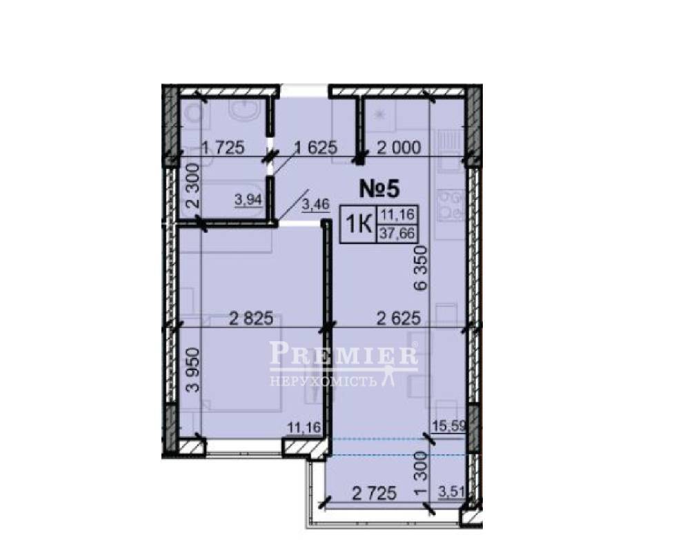
Кімнат
1
Загальна
37.66 м2
Житлова
15.6 м2
Кухня
11.2 м2
Поверх
16
Поверховість
17
Продам в Одесі 1но кімнатну квартиру на Таїрова, вул.Жемчужна. 16 й поверх 17-ти поверхового зданого будинку. Загальна площа 38 м2, житлова 16 м2, кухня 11 м2, просторий передпокій, санвузол суміжний 5 м2. Панорамне вікно в кімнаті, вікна енергозберігаючі, фірмові броньовані двері. Світла та простора. Два ліфта, консьєрж, відеоспостереження, закритий двір. Поруч супермаркет, садок, школа. Зручне транспортне сполучення. Ідеальний варіант для затишного та успішного життя. Вигідна ціна. Телефонуйте. Дивіться. Купуйте.
34 000 USD
29 246 EUR
1 443 300 UAH
Філіявул. Ак. Корольова, 33
Відповідальний спеціаліст
вищої категорії Володимир Нечипоренко
вищої категорії Володимир Нечипоренко
Показати
Додаткові послуги
Прибутковість об'єкту від оренди*
від8028грн/місяць
*Середня ціна при здачі об'єкта в оренду в Київськом районі
Зміна цін на 1-комн. квартира в новобудові в Київськом районі
Схожі об`єкти
1-комн. квартира в новобудові
г.Одесса/Киевский/Архитекторская ул. (ЖК 15 Жемчужина)
Цена33 600 USD
Общая42 м2
Цена33 600 USD
42 м2
Однокімнатна квартира
м.Одеса/Київський/Дача Ковалевського вул.
Цена27 000 USD
Общая31 м2
Цена27 000 USD
31 м2
Однокімнатна квартира
м.Одеса/Київський/Дача Ковалевського вул.
Цена40 000 USD
Общая40 м2
Цена40 000 USD
40 м2