Продається 2-комн. квартира в новобудові, Шота Руставелі вул., м.Одеса
Одеса, Хаджибейськом, ул. Шота Руставелі в
ID 212185
Кімнат
2
Загальна
77 м2
Житлова
30 м2
Поверх
2
Поверховість
10
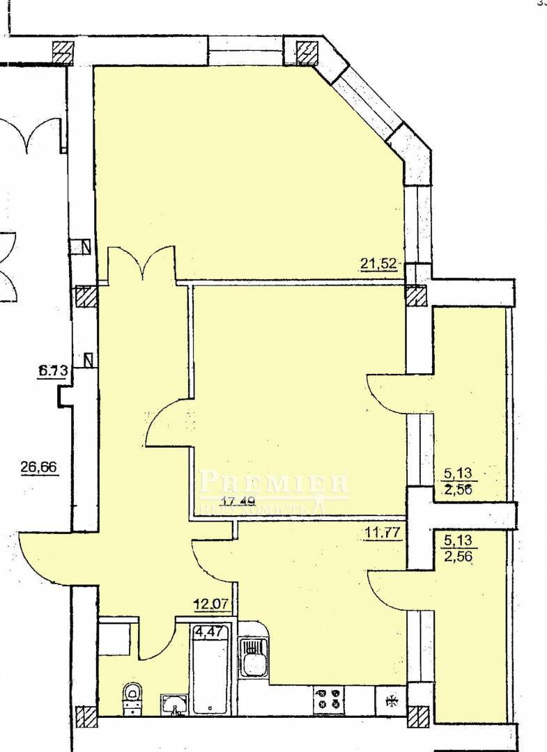
Продається 2-кімнатна квартира в новому житловому комплексі близько до центру та Черемушок. Знаходиться на 2 поверсі 10-поверхового монолітно-каркасного цегляного будинку. Будинок збудований.
Квартира з 2 лоджіями, світла, тепла, з газом і індивідуальним опаленням (АОГВ). Загальна площа квартири 77 кв.м, житлова 40 кв.м, кухня 12 кв.м. Розпланована на правильної форми дві роздільні спальні, кухню, просторий коридор, санвузол сумісний. Квартира в стані від забудовника, заведені комунікації, опалення, висота стелі 2,85.
Закрита територія будинку, ліфт, охорона, відеоспостереження. Близькість центру міста.
Квартира з 2 лоджіями, світла, тепла, з газом і індивідуальним опаленням (АОГВ). Загальна площа квартири 77 кв.м, житлова 40 кв.м, кухня 12 кв.м. Розпланована на правильної форми дві роздільні спальні, кухню, просторий коридор, санвузол сумісний. Квартира в стані від забудовника, заведені комунікації, опалення, висота стелі 2,85.
Закрита територія будинку, ліфт, охорона, відеоспостереження. Близькість центру міста.
54 300 USD
45 250 EUR
2 334 900 UAH
Філіявул. Космонавтів, 32
Відповідальний спеціаліст Євгеній Найдьонов
Показати
Додаткові послуги
Прибутковість об'єкту від оренди*
від13000грн/місяць
*Середня ціна при здачі об'єкта в оренду в Хаджибейськом районі
Зміна цін на 2-комн. квартира в новобудові в Хаджибейськом районі
Схожі об`єкти
Двокімнатна квартира
м.Одеса/Хаджибейський/Бабаджаняна Маршала (Рекордна) вул.
Цена69 000 USD
Общая80 м2
Цена69 000 USD
80 м2
Двокімнатна квартира
м.Одеса/Хаджибейський/Космонавтів вул.
Цена39 000 USD
Общая61 м2
Цена39 000 USD
61 м2
Двокімнатна квартира
м.Одеса/Хаджибейський/Сосюри вул.
Цена52 500 USD
Общая65 м2
Цена52 500 USD
65 м2
Двокімнатна квартира
м.Одеса/Хаджибейський/Олексія Вадатурського вул. (Малиновського Маршала вул.)
Цена55 000 USD
Общая56 м2
Цена55 000 USD
56 м2