Продається Будинок дача, Якірна вул., Лиманка (Мизикевича)
Одеська обл. / Лиманка (Мизикевича) / ул. Якірна в
ID 212597
Кімнат
3
Загальна
164 м2
Житлова
41.1 м2
Кухня
30.7 м2
Поверховість
3
Ділянка
1.11 сотка
Газ
Природный
Вода
Водопровод
У продажу стильний таунхаус у передмісті Одеси на закритій території з сучасною архітектурою та продуманим плануванням.
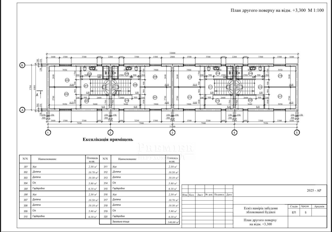
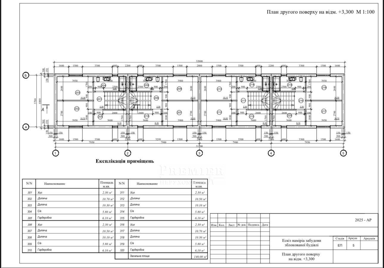
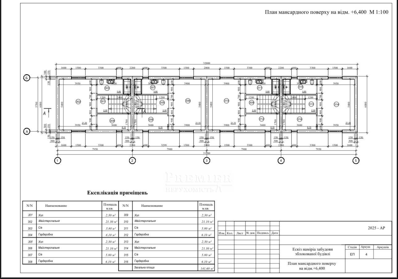
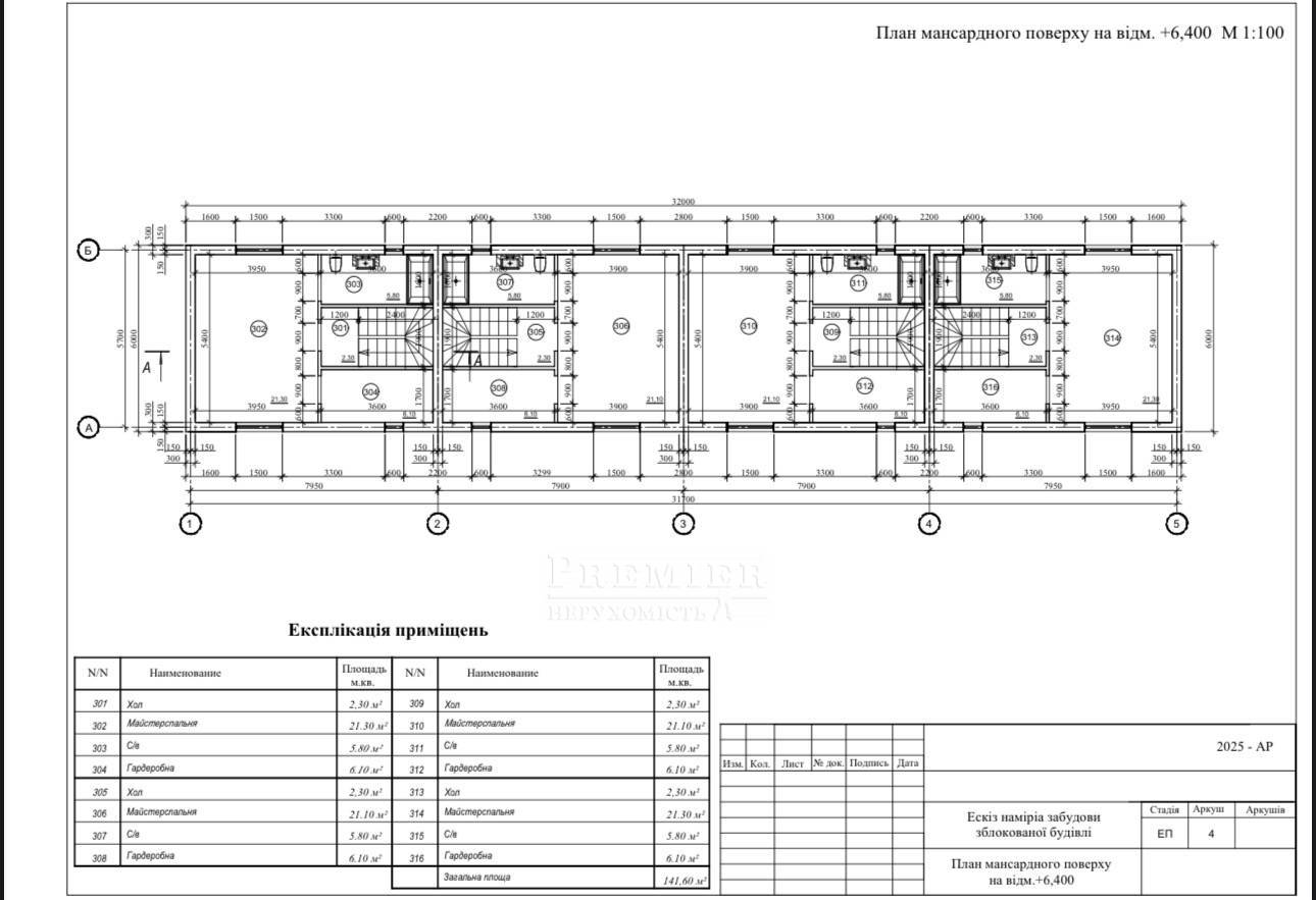
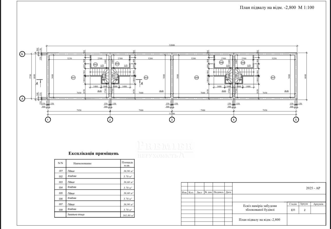
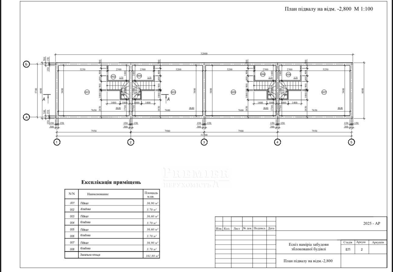
Загальна площа будинку — 164 м², 4 рівні: просторий підвал та три житлові поверхи.
Будинок виконаний з якісних матеріалів: надійний фундамент з гідроізоляцією, бетонні перекриття між поверхами, литі монолітні сходи, цегляні стіни між сусідами забезпечують максимальну шумоізоляцію.
Перед будинком передбачено місце для двох автомобілів.
На задньому дворі — затишна зона відпочинку з мангалом, де можна проводити вечори із сім'єю та друзями.
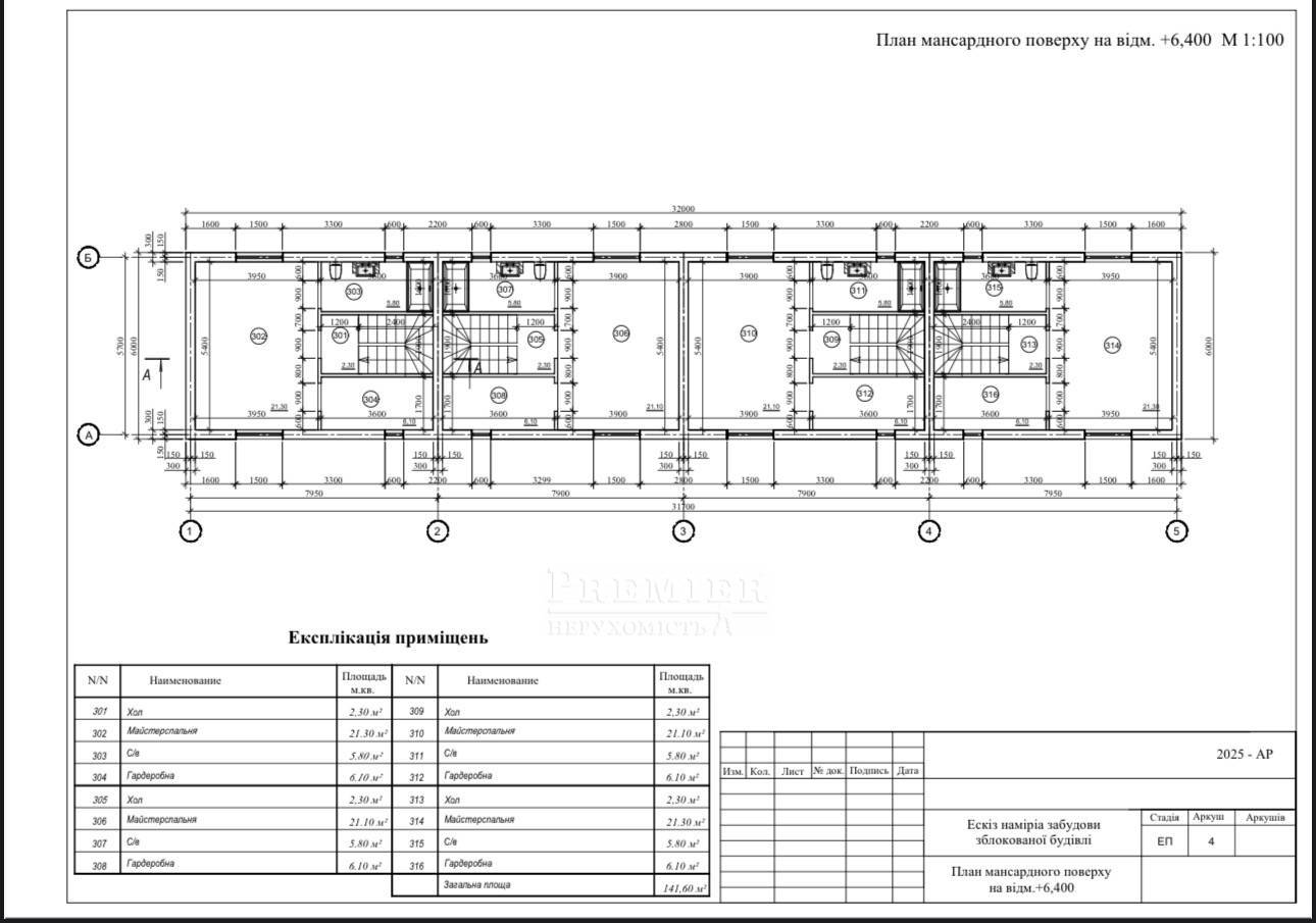
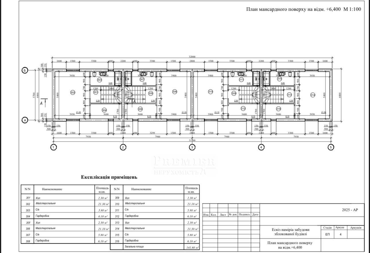
Планування: Підвал – додатковий простір для зберігання або облаштування хобі-зони. 1 поверх: кухня-вітальня, вбиральня, санвузол, вихід на терасу. 2 поверх: дві спальні та санвузол. 3 поверх: майстер-спальня зі своїм санвузлом або можливість зробити дві окремі спальні.
Такий будинок – це ідеальний баланс між комфортом заміського життя та близькістю до міста. Телефонуйте!
Загальна площа будинку — 164 м², 4 рівні: просторий підвал та три житлові поверхи.
Будинок виконаний з якісних матеріалів: надійний фундамент з гідроізоляцією, бетонні перекриття між поверхами, литі монолітні сходи, цегляні стіни між сусідами забезпечують максимальну шумоізоляцію.
Перед будинком передбачено місце для двох автомобілів.
На задньому дворі — затишна зона відпочинку з мангалом, де можна проводити вечори із сім'єю та друзями.
Планування: Підвал – додатковий простір для зберігання або облаштування хобі-зони. 1 поверх: кухня-вітальня, вбиральня, санвузол, вихід на терасу. 2 поверх: дві спальні та санвузол. 3 поверх: майстер-спальня зі своїм санвузлом або можливість зробити дві окремі спальні.
Такий будинок – це ідеальний баланс між комфортом заміського життя та близькістю до міста. Телефонуйте!
105 000 USD
89 534 EUR
4 637 850 UAH
ФіліяЄвгена Чикаленка, 58а
(Академіка Вільямса)
(Академіка Вільямса)
Відповідальний спеціаліст
вищої категорії Андрій Стаднік
вищої категорії Андрій Стаднік
Показати
Додаткові послуги
Схожі об`єкти
Будинок дача
Одеська. обл./Одескій район/Сичавка/Філатова вул.
Цена75 000 USD
Общая240 м2
Участок25соток
Цена75 000 USD
25 соток
Будинок дача
Одеська. обл./Одескій район/Біляївка/Котовського вул.
Цена52 500 USD
Общая82 м2
Участок7.2соток
Цена52 500 USD
7.2 соток
Будинок дача
Одеська. обл./Одескій район/Молодіжне/4 лінія (3 Масив)
Цена75 000 USD
Общая103.15 м2
Участок8.2соток
Цена75 000 USD
8.2 соток
Будинок дача
Одеська. обл./Одескій район/Доброслав (Комінтернівське)/Першотравнева
Цена120 000 USD
Общая58 м2
Участок8.5соток
Цена120 000 USD
8.5 соток