Продається 2-комн. квартира в новобудові, Краснова вул. (ЖК 68 Перлина), м.Одеса
Одеса, Приморський, ул. Краснова в (ЖК 68 Перлина)
ID 212634
Кімнат
2
Загальна
68.3 м2
Житлова
42 м2
Кухня
9.7 м2
Поверх
11
Поверховість
24
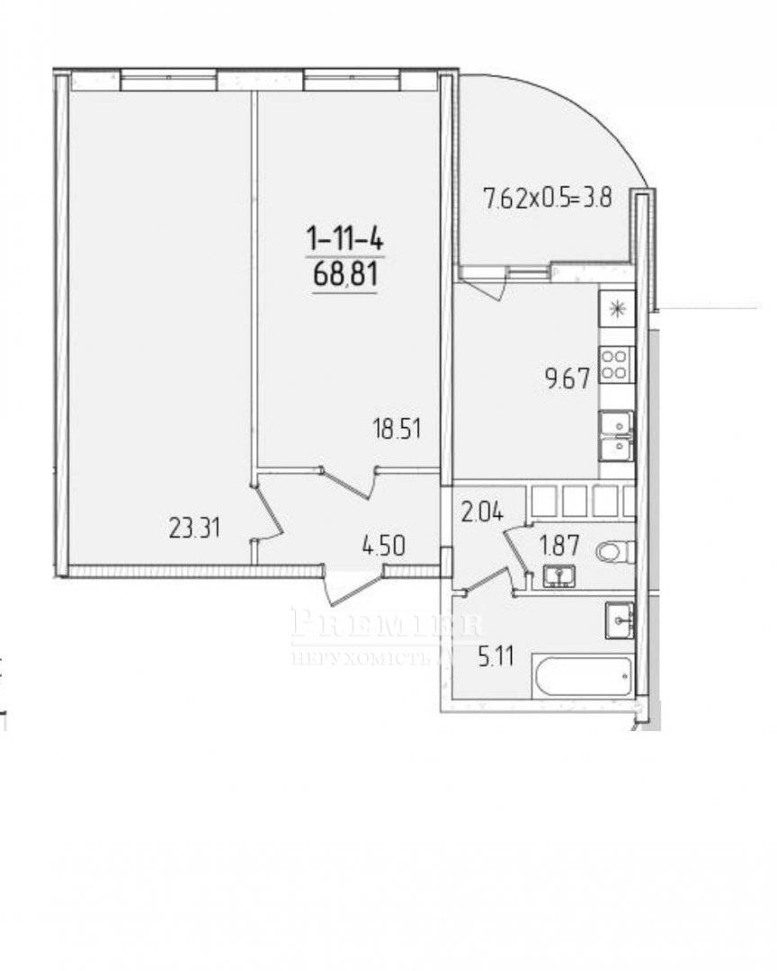
Пропонується до продажу 2-кімнатна квартира в новому зданому будинку 68 Перлина Кадор, Кадор Сіті на Краснова. Квартира розташована на комфортному, середньому 11 поверсі, з кімнат (23.3 м2 та 18.5 м2) вид на море та іподром, з кухні вихід на кутову велику терасу, площею 7,6 м2. Найнижча ціна на квартири з даним плануванням. У будинку на 1 поверсі розташований супермаркет Сільпо, комерційна нерухомість, салони краси, в комплексі буде 2 великі ресторани. Також у комплексі є великий 2-рівневий паркінг, в якому можна орендувати. У будинку є обладнаний притулок на -2 рівні, на випадок тривог. Найбільший в Україні житловий комплекс, збудований за концепцією "Місто в місті". Спортивні майданчики, дитячі майданчики, бігові та велодоріжки, зони відпочинку та зони барбекю, зони для вигулу собак, фонтани та озеленення прибудинкової території. Охорона, відеоспостереження та свою керуючу компанію.
88 000 USD
84 000 USD 103 909 EUR
71 139 EUR 3 718 880 UAH
3 549 840 UAH Філія
Відповідальний спеціаліст Вікторія Китчак
Показати
Додаткові послуги
Прибутковість об'єкту від оренди*
від19993грн/місяць
*Середня ціна при здачі об'єкта в оренду в Приморський районі
Зміна цін на 2-комн. квартира в новобудові в Приморський районі
Схожі об`єкти
Двокімнатна квартира
м.Одеса/Приморський/Балтиморська (Посмітного) вул.
Цена100 000 USD
Общая73 м2
Цена100 000 USD
73 м2
Двокімнатна квартира
м.Одеса/Приморський/Пироговська вул.
Цена80 000 USD
Общая65 м2
Цена80 000 USD
65 м2
2-комн. квартира в новобудові
м.Одеса/Приморський/Гагарінське плато
Цена85 000 USD
Общая86 м2
Цена85 000 USD
86 м2
Двокімнатна квартира
м.Одеса/Приморський/Середньофонтанська вул.
Цена85 000 USD
Общая88 м2
Цена85 000 USD
88 м2