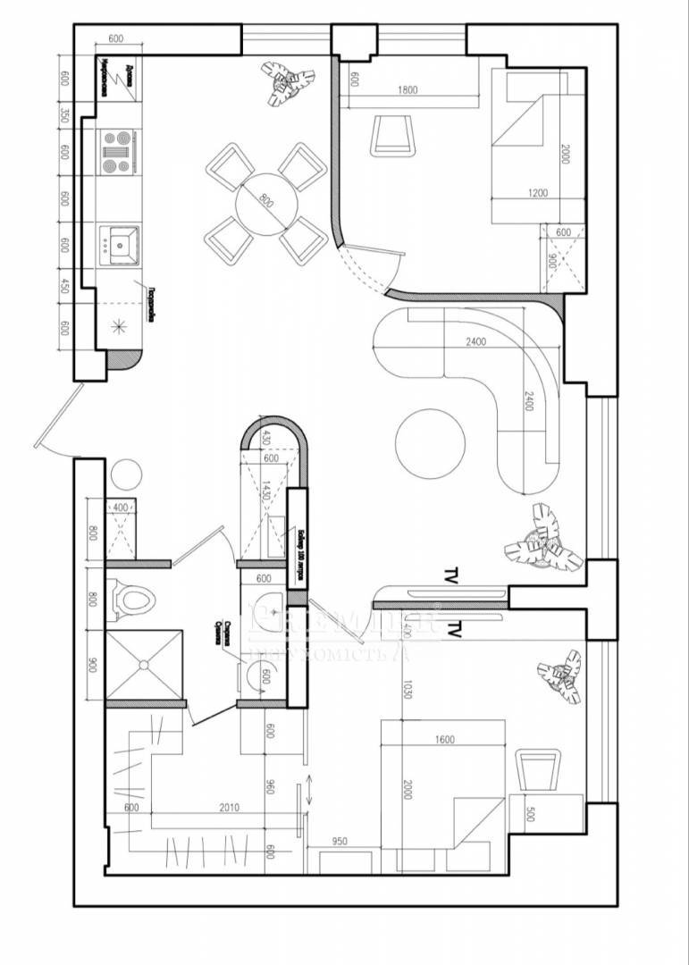
Продається 3кімнатна квартира, Шевченко просп., м.Одеса
Одеса, Приморський, просп. Шевченко
ID 212717
Кімнат
3
Загальна
65 м2
Житлова
45 м2
Кухня
15 м2
Поверх
10
Поверховість
13
Пропонується на продаж дизайнерська квартира у затишному, тихому та зеленому районі Одеси, в кроковій доступності від легендарної Аркадії. Новий будинок всього 13 поверхів та одна парадна, що забезпечує комфорт і приватність. Престижне розташування, власний в'їзд прямо з проспекту Шевченка. Гарний закритий дворик з ландшафтним дизайном. Цілодобова охорона території. Наявність підземного паркінгу (місце можна придбати/орендувати). Обладнане бомбосховище для вашої безпеки. Вид, що надихає: З балкона відкривається панорамний вид на парк та море. Тут немає відчуття "мурашника" — лише простір, повітря та тиша. Ця квартира — втілення якості та уваги до деталей. Кожен елемент інтер'єру виконаний з використанням преміум-матеріалів і сучасних інженерних рішень. Максимальна звукоізоляція, стіни та стеля ізольовані від сусідів для повного спокою. Система кондиціонування, настінний радіатор, тепла підлога та підлогові вбудовані конвектори (вартістю як невелике авто!) забезпечують ідеальний мікроклімат цілий рік. У вітальні та столовій зоні — якісна плитка. Дороге та стильне, довговічне декоративне покриття. Елегантні стінові панелі. Сучасні алюмінієві плінтуси. Інноваційні магнітні треки, прихований тіньовий профіль з підсвічуванням, ексклюзивний дизайнерський світло. Усі двері прихованого монтажу, високі, до стелі, виготовлені на замовлення (преміум-клас). Підвіконня: Штучний камінь. Кухня виконана з дорогих, високоякісних матеріалів. Стільниця та робоча стіна: Монолітна конструкція з керамічного каменю (цілісна, без швів чи плитки). Повністю укомплектована вбудованою технікою від провідних брендів Bosh та Siemens (холодильник, посудомийна машина, варильна панель, духовка, мікрохвильова піч, витяжка). Кухня містка, продумана до дрібниць. Ця квартира ідеально підійде тим, хто цінує розкіш, безпеку та виняткову якість життя в одному з найкращих районів міста. Запрошуємо на перегляд, щоб відчути атмосферу та оцінити рівень виконання наживо.
149 999 USD
127 095 EUR
6 367 458 UAH
ФіліяАртура Савельєва вул.
(Черняховского) 11
(Черняховского) 11
Відповідальний спеціаліст Олена Сметаніна
Показати
Додаткові послуги
Прибутковість об'єкту від оренди*
від18316грн/місяць
*Середня ціна при здачі об'єкта в оренду в Приморський районі
Зміна цін на трикімнатні квартири в Приморський районі
Схожі об`єкти
Трикімнатна квартира
м.Одеса/Приморський/Шевченко просп.
Цена190 000 USD
Общая125 м2
Цена190 000 USD
125 м2
Трикімнатна квартира
м.Одеса/Приморський/Гагарінське плато
Цена175 000 USD
Общая112 м2
Цена175 000 USD
112 м2
Трикімнатна квартира
м.Одеса/Приморський/Пироговська вул.
Цена115 000 USD
Общая132 м2
Цена115 000 USD
132 м2
Трикімнатна квартира
м.Одеса/Приморський/Педагогічна вул.
Цена130 000 USD
Общая115 м2
Цена130 000 USD
115 м2