Продається 2-комн. квартира в новобудові, Овідіопольська дорога, м.Одеса
Одеса, Хаджибейськом, Овідіопольська дорога
ID 213869
Кімнат
2
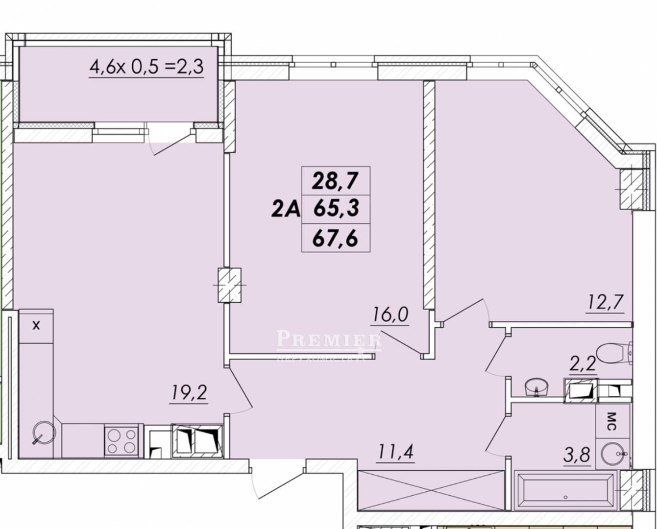
Загальна
70 м2
Житлова
30 м2
Кухня
20 м2
Поверх
3
Поверховість
16
Пропонується до продажу простора 2 кімнатна квартира в найпрестижнішому районі. Житловий комплекс розташований у парковій зоні за 10 хвилин їзди від історичного центру міста. Площа квартири 68м2, 2 роздільні кімнати, кухня вітальня - 20м2, лоджія, окремі санвузол. Вбиральня. Стан від будівельників. Квартира дуже світла, тепла, внутрішня з прекрасним видом на упорядкований ландшафтний дизайн двір. Сучасний якісний будинок будинок від самої ненадійної компанії Стікон. У будинку є генератор. Підземний паркінг. Керуюча компанія. Вся інфраструктура у пішій доступності. Телефонуйте! Найвигідніша ціна.
55 000 USD
47 614 EUR
2 340 250 UAH
Філіявул. Ак. Корольова, 33
Відповідальний спеціаліст
вищої категорії Володимир Нечипоренко
вищої категорії Володимир Нечипоренко
Показати
Додаткові послуги
Прибутковість об'єкту від оренди*
від9584грн/місяць
*Середня ціна при здачі об'єкта в оренду в Хаджибейськом районі
Зміна цін на 2-комн. квартира в новобудові в Хаджибейськом районі
Схожі об`єкти
Двокімнатна квартира
м.Одеса/Хаджибейський/Бабаджаняна Маршала (Рекордна) вул.
Цена69 000 USD
Общая80 м2
Цена69 000 USD
80 м2
Двокімнатна квартира
м.Одеса/Хаджибейський/Липи Івана і Юрія вул. (Гайдара)
Цена50 000 USD
Общая60 м2
Цена50 000 USD
60 м2
Двокімнатна квартира
м.Одеса/Хаджибейський/Космонавтів вул.
Цена39 000 USD
Общая61 м2
Цена39 000 USD
61 м2
Двокімнатна квартира
м.Одеса/Хаджибейський/Сосюри вул.
Цена52 500 USD
Общая65 м2
Цена52 500 USD
65 м2