Продається Будинок дача, Соборна вул., Фонтанка
Одеська обл. / Фонтанка / ул. Соборна в
ID 130347
Кімнат
2
Загальна
94 м2
Кухня
29 м2
Поверховість
2
Ділянка
2 сотки
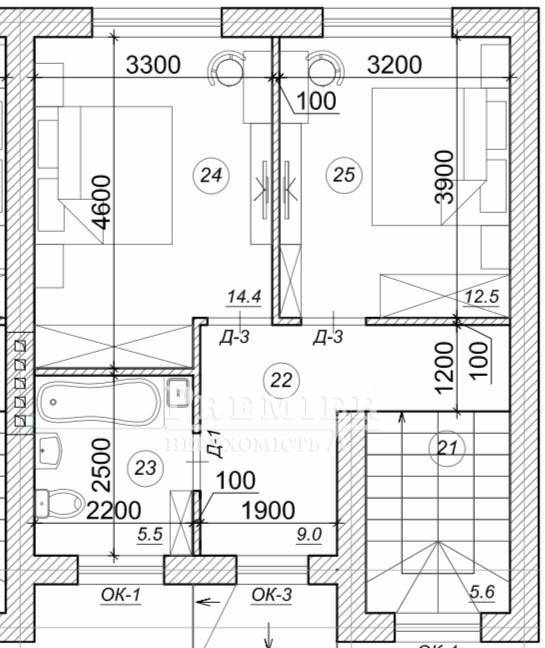
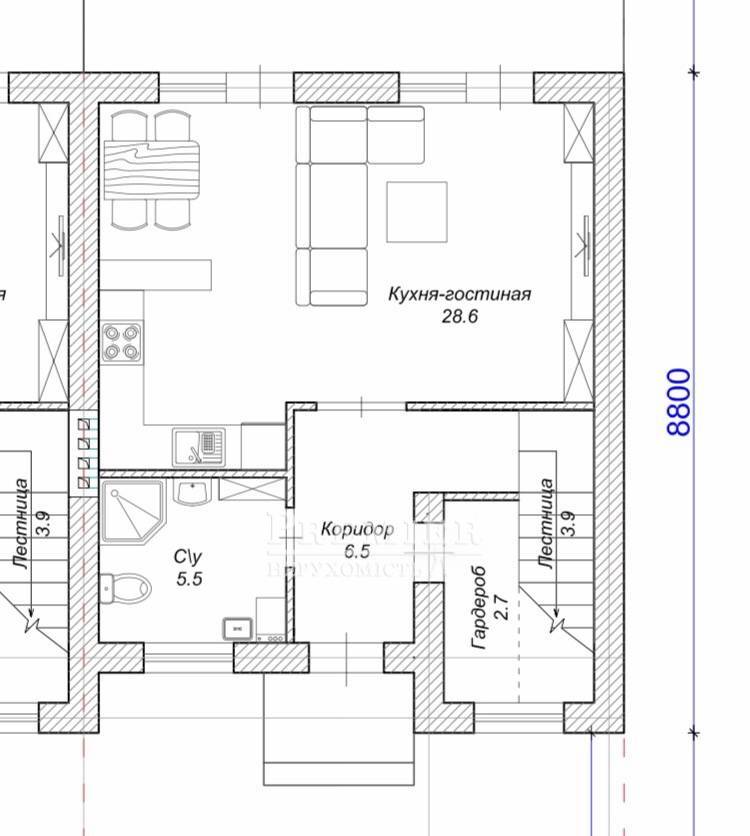
Продається Таунхаус в Фонтанке-2. Площа ділянки 2 сотки. На задньому дворі площа 45 м2. Загальна площа таунхауса 94 м2. На першому поверсі санвузол 6 м2, кухня-вітальня 29 м2, вбиральня 3 м2. На другому поверсі дві кімнати (15 м2 і 13 м2), санвузол 6 м2. Всередині стан таунхауса від будівельників. Але за бажанням покупців можна виконати внутрішні роботи (відповідно за іншу ціну). Фасадні роботи виконані всі.
65 000 USD
60 000 USD 75 774 EUR
51 469 EUR 2 729 350 UAH
2 519 400 UAH Філіявул. Сахарова 24
Відповідальний спеціаліст
вищої категорії Наталія Кухтінова
вищої категорії Наталія Кухтінова
Показати
Додаткові послуги
Схожі об`єкти
Будинок дача
Одеська. обл./Одескій район/Бурлача Балка/Центральна вул.
Цена59 900 USD
Общая70 м2
Участок10соток
Цена59 900 USD
10 соток
Будинок дача
Одеська. обл./Одескій район/Олександрівка/Молодіжна вул.
Цена31 000 USD
Общая65.5 м2
Участок14.5соток
Цена31 000 USD
14.5 соток
Будинок дача
Одеська. обл./Одескій район/Овідіополь/Карла Маркса вул.
Цена75 000 USD
Общая202 м2
Участок10соток
Цена75 000 USD
10 соток
Будинок дача
Одеська. обл./Одескій район/Великий Дальник/Шевченко вул.
Цена70 000 USD
Участок40соток
Цена70 000 USD
40 соток