Нерухомість в Приморському районі
м.Одеса/Приморський/Бернардацці (Червоних зорь) вул.
м.Одеса/Приморський/Генуезька вул. (ЖК 42 Перлина)
м.Одеса/Приморський/Гагарінське плато
м.Одеса/Приморський/Незалежності вул. (Армійська вул.)
м.Одеса/Приморський/Гагарінське плато
м.Одеса/Приморський/Генуезька вул. (ЖК 51 Перлина)
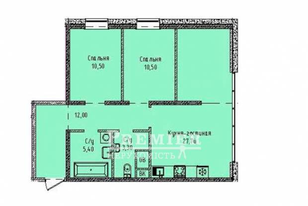
м.Одеса/Приморський/Гагарінське плато
м.Одеса/Приморський/Педагогічна вул.
м.Одеса/Приморський/Валерія Самофалова (Каманіна) вул. (ЖК 27 Перлина)
м.Одеса/Приморський/Ванний пров.
м.Одеса/Приморський/Адміральський просп.
м.Одеса/Приморський/Шевченко просп.
м.Одеса/Приморський/Морський пров.
м.Одеса/Приморський/Григорія Зленка вул. (Швигіна Генерала вул.)
м.Одеса/Приморський/Фонтанська дорога вул.
м.Одеса/Приморський/Гагарінське плато
Приморський район Одеси є найбільш затребуваним в плані проживання. Привабливий він, перш за все, своїм розташуванням. Тут є безліч виходів до знаменитих одеських пляжів, сконцентрована велика кількість розважальних закладів на будь-який смак і бюджет, зручна транспортна розв'язка і т.д.
Оскільки це центр міста, то тут побудовано безліч бізнес-центрів і невеликих комерційних об'єктів, де багато компаній вважають за краще придбати або зняти офісне приміщення. Авжеж, жити тут дуже зручно, оскільки завжди знаходишся в центрі подій. Завдяки такому розкладу квартири в Приморському районі користуються високим попитом на місцевому ринку.
Політика цін на місцеву нерухомість
Оскільки житло в даній частині міста настільки популярно, то це відбивається на вартості квадратного метра. Тут представлені нові РК і об'єкти вторинного житлового фонду. Відрізняються вони станом, площею, наявністю зручностей і багатьом іншим.
Як показує статистика, за останні 8 років ціни на квартири залишалися практично на одному рівні, лише іноді зазнавали невеликих змін. Був період, коли вони почали знижуватися. Пов'язано це було з економічною кризою. Однак коли почалися складнощі з банківською системою і українці почали шукати альтернативні шляхи вкладення своїх заощаджень, то показники почали зростати.
На сьогодні попит на ринку як і раніше високий. На просторах інтернету і на вуличних дошках можна знайти багато цікавих оголошень. Серед них можна знайти вигідний варіант, який буде максимально відповідати особистим вимогам. Звичайно, доведеться витратити сили і час, щоб підібрати необхідний об'єкт.
Придбання одеських квартир
Як правило, продаж нерухомості здійснюється за допомогою спеціалізованого агентства. Так набагато простіше знайти покупця і правильно оформити угоду. Це ж стосується і тих, хто хоче купити квартиру в Приморському районі або в будь-який інший частині міста.
Звичайно, цим займатися можна і самостійно, використовуючи різні інтернет-ресурси. Однак це займе багато часу. Крім того, тут висока ймовірність потрапити в неприємну ситуацію. Тому купувати нерухомість без кваліфікованого фахівця можна, хіба що, володіючи потрібними знаннями, чим відрізняються далеко не всі.
Репутацію грамотного помічника заробила компанія «Премьер», яка з кожним роком лише підтверджує свій професіоналізм. Вона може похвалитися великою базою актуальних об'єктів, серед яких завжди знайдеться відповідний варіант.
Її співробітники завжди готові допомогти вирішити таке завдання, яке самостійно вирішити досить складно. Кожен клієнт отримує докладну консультацію та індивідуальний підхід. Вже найближчим часом з моменту звернення, буде представлений список об'єктів, які відрізняються усіма або здебільшого необхідних властивостей. Також в компанії «Премьер» можна отримати юридичну допомогу.
