Продається Житловий квартал "MERIDIAN" (Меридіан), вул. Проектна, 4, м. Одеса

Одеса, , ул. в Проектна, 4
Рассрочка до 5ти лет. Первый взнос от 10%.



Характеристики Жилой квартал «MERIDIAN» (Меридиан)
Початок будівництва:
3 квартал 2021
Завершення будівництва:
4 квартал 2024
Конструктив будинку
Поверховість:
5
Конструктив:
Монолитно-каркасный+газобетон
Утеплення:
минеральная вата
Міжквартирні:
Газобетон
Стан житла
Вікна:
Метало-пластиковый профиль
Висота приміщення:
2,75
Опалення:
Автономное
Інженерні системи
Ліфт:
Бесшумный скоростной лифт
Безпека:
круглосуточная охрана, электронный ключ доступа на территорию
Паркінг:
наземный 2-х уровневый, гостевые парковочные места.

Суворовський район Одеси очікує чергове поповнення у вигляді нового житлового комплексу «Меридіан». Це об'єкт комфорт-класу, розташований в кращій частині району. Він оточений численними об'єктами інфраструктури, включаючи супермаркети, дитячі садки, школи, медичні організації, салони краси, фітнес-клуби, розважальні заклади і інше. Додатковим бонусом виступає присутність неподалік провідних автомагістралей міста.

Монолітно-каркасний комплекс, який базується на пальовому фундаменті, налічує 12 секцій по 5 поверхів. Матеріалом стін виступає газобетон, а роль утеплювача грає мінеральна вата. Для облаштування фасаду використовується якісна штукатурка і атмосферостійкі фарби. У комплексі обладнуються швидкісні, безшумні ліфти. Власники автомобілів гідно оцінять містку наземне паркування в два рівня.

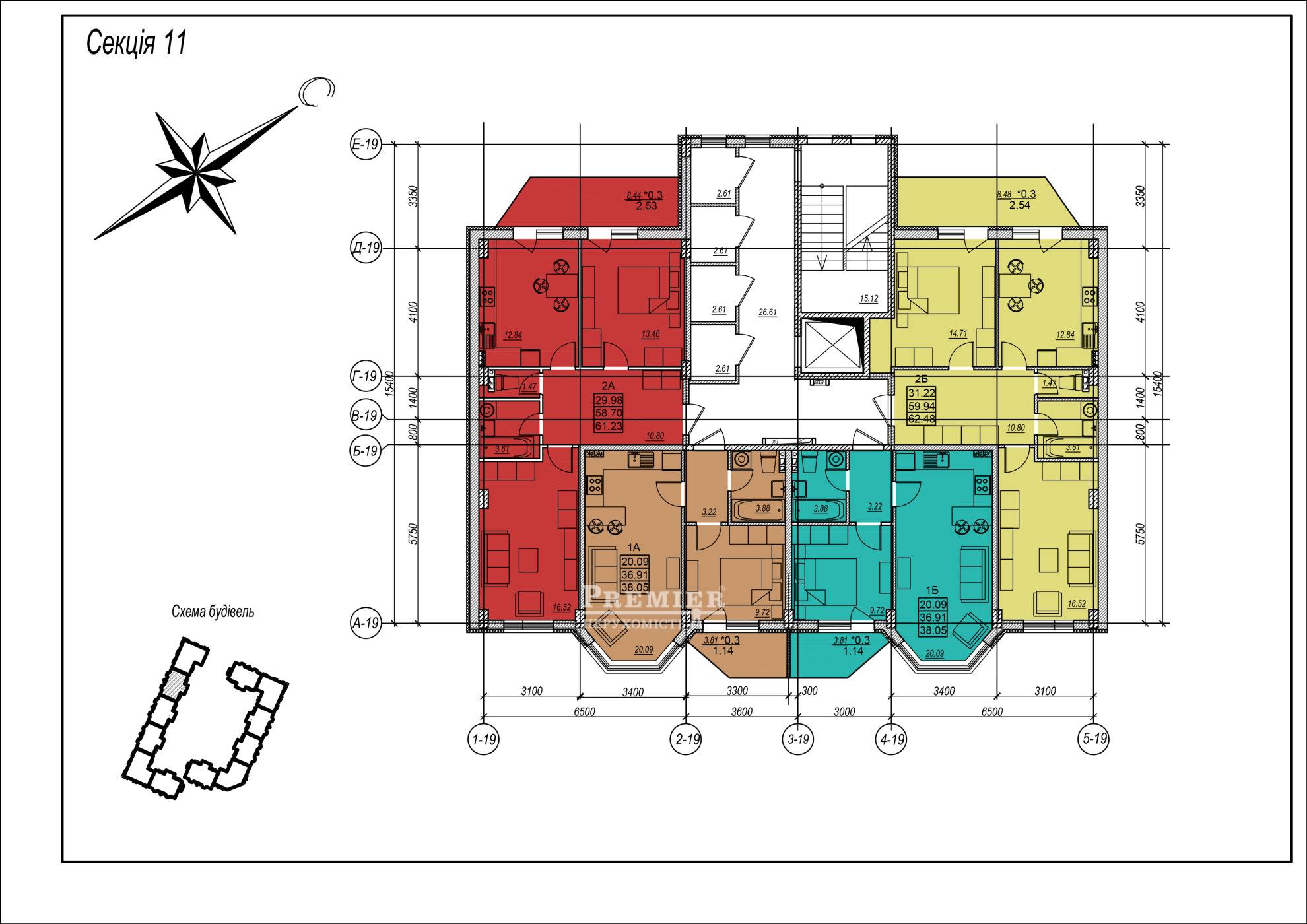
У комплексі пропонуються одно-, дво- і трикімнатні квартири з роздільними плануваннями і численними зручностями. Мінімальна площа становить 34,8 квадратних метрів. Висота стель досягає 2,7 метрів. Тепло в квартири надходить за допомогою системи автономного опалення з установкою теплолічильників. Також проводиться монтаж металопластикових вікон з енергозберігаючими склопакетами та броньованих вхідних дверей.

Прибудинкова територія знаходиться під цілодобовою охороною з відеоспостереженням. Вона упорядковується і прикрашається за рахунок висадки рослин. Вхід на неї здійснюється за допомогою електронних ключів. Виділяються місця для відпочинку та піших прогулянок. По всьому комплексу функціонує сучасна протипожежна система.

Закінчення будівництва: 1-ша черга - 4 квартал 2024г.

 

от 27 621
ГРН. / кв.м
USD
UAH
Компанія Прем'єр є офіційним партнером будівельної компанії. Об'єкти продаються без будь-якої комісії.
Контакти менеджерів з продажу
Семена Палия, 108 (Днепропетровская дор,)
просп. Князя Владимира Великого, 99 (Добровольского просп.)
ул. Сахарова 24
Задати питання
Подивитись на карті
Додаткові послуги