Продається ЖК MODERN (Модерн), вул. Івана Франка, м.Одеса







ЖК MODERN
В районі Великого Фонтану стартує будівництво нового комфортабельного житлового комплексу. Поруч з ним проходить зручна транспортна розв'язка з основними маршрутами громадського транспорту. У пішої доступності від будинку розташовані школи, дитячі садки, вищі навчальні заклади, магазини, салони краси, спортзали, а також різні розважальні заклади.
Комплекс складається з 7 секцій. Головною відмінною рисою його є елегантне архітектурне рішення. Він виконується в декількох стильних відтінках з оригінальними елементами декору. Монолітно-каркасний будинок з пальових фундаментом здатне витримати сейсмічну активність. Ще однією фішкою комплексу виступає комбінована фасадна система. Вона дозволить економити на опаленні і кондиціонуванні.
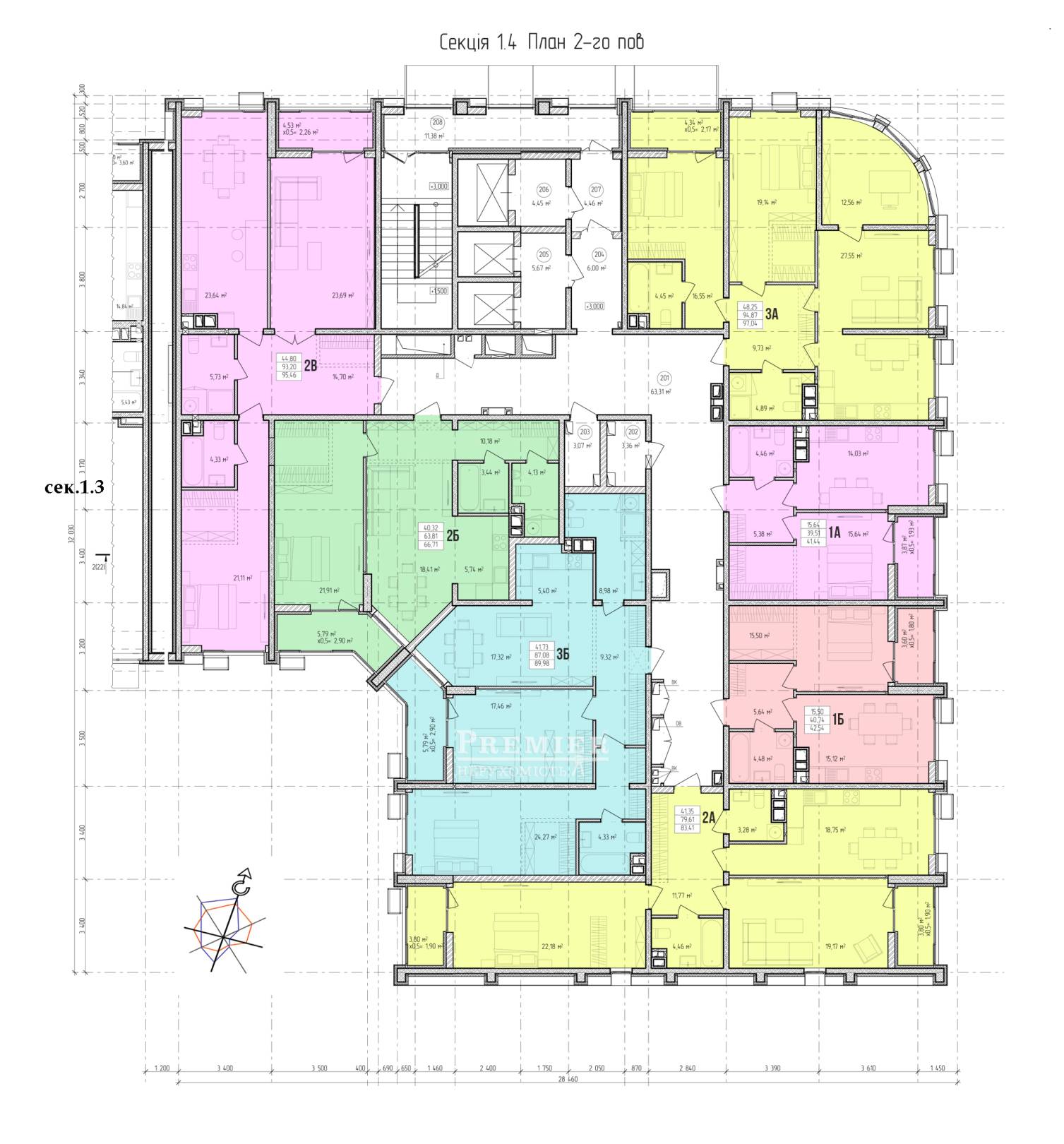
Квартири характеризуються сучасним плануванням з численними зручностями і відсутністю «зайвих» квадратних метрів. Збереження мікроклімату гарантується за рахунок монтажу міцних металопластикових вікон з енергозберігаючими склопакетами. Збереження майна гарантується за рахунок установки броньованих вхідних дверей.
Комплекс облаштовуємо швидкісними безшумними ліфтами і містким підземним паркінгом. Територія ушляхетнюється і знаходиться під цілодобовою охороною з відеоспостереженням. У комплексі встановлюється сучасна протипожежна система. До будинку виконуються зручні і безпечні під'їзди.
Закінчення будівництва: 4 квартал 2021года
Кількість кімнат | Площа | Цена за м2 |
---|---|---|
Однокомнатные квартиры | от 43 м² | 970 $ |
Двухкомнатные квартиры | от 69,13 м² | 890 $ |
Трехкомнатные квартиры | от 91,5 м² | 820 $ |
Студия | от 33,37 м² | 1020 $ |
Квартири від хазяїна в цьому ЖК
м.Одеса/Приморський/Франка Івана вул.
м.Одеса/Приморський/Франка Івана вул.
м.Одеса/Приморський/Франка Івана вул.
Популярні новобудови в цьому районі
м.Одеса/Приморський/Французський бульвар