











Київський район отримав нову прикрасу у типовому одеському стилі. Ним є житловий комплекс під назвою "Одеські Традиції на Глушку". Це житло комфорт-класу, виконане з оригінальним дизайном, який містить нотки місцевого колориту. Поруч розташовані численні магазини, дитячі садки, школи, розважальні заклади, торговельно-розважальні центри, медичні заклади та багато іншого. Неподалік також є зручна транспортна розв'язка.
Комплекс складається з 4 секцій та 17 поверхів. Залізобетонна конструкція базується на пальному фундаменті, а стіни виконуються з газобетону. Фасад облаштовується за рахунок штукатурки та фасадного структурного фарбування атмосферостійкими фарбами. Як утеплювач використовується мінеральна вата. У кожній секції облаштовуються по 2 швидкісні безшумні ліфти. Для автовласників передбачено місткий підземний паркінг.
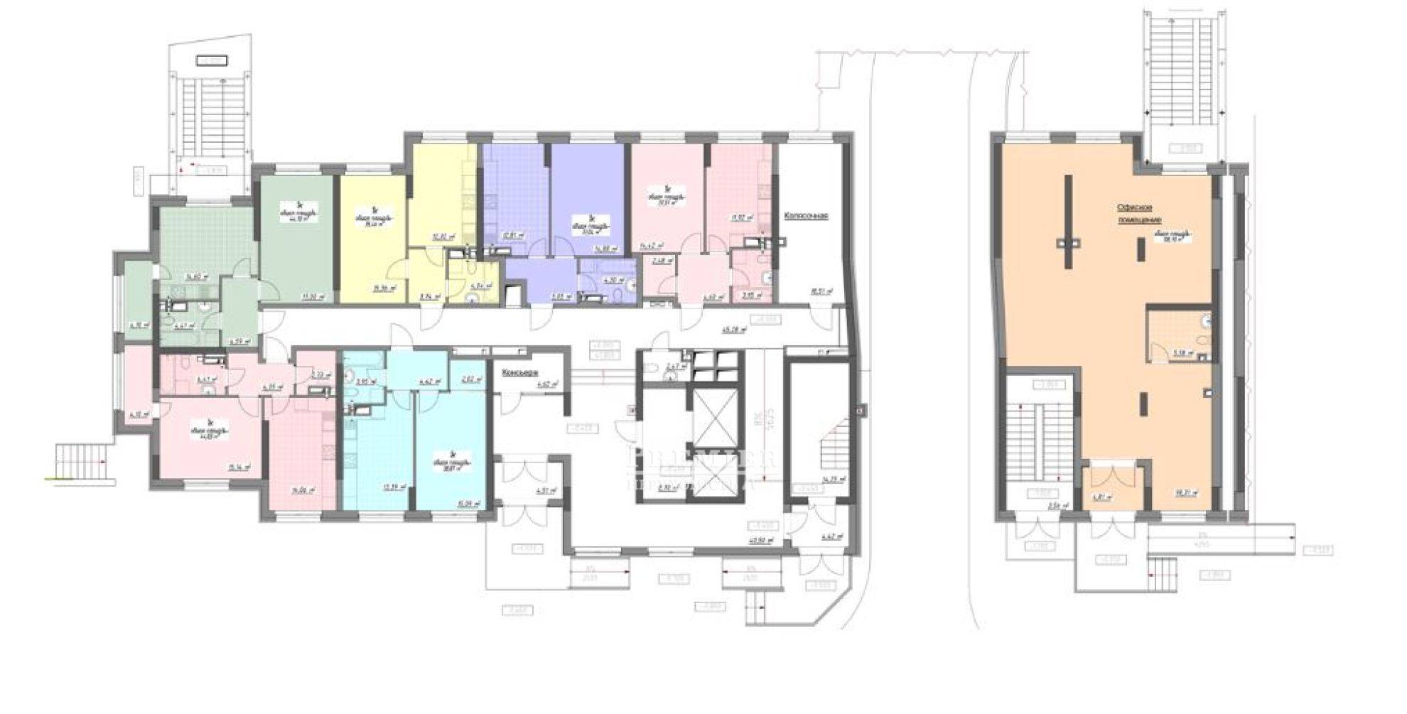
У комплексі представлені одно-, дво- та трикімнатні квартири з мінімальною площею 32 квадратні метри та максимальною 87 квадратних метрів. Висота стелі складає 2,7 метрів. Система опалення представлена газовою котельнею, розташованою на даху. У квартири тепло надходить за допомогою опалювальних приладів із терморегулюючим обладнанням. Збереження мікроклімату забезпечують металопластикові вікна з енергозберігаючими склопакетами. На входах монтуються металеві двері з утепленням та декоративним покриттям.
Прибудинкова територія упорядковується і прикрашається зеленими насадженнями, квітковими клумбами. Виділяються місця для відпочинку та піших прогулянок. У комплексі діє цілодобова охорона із відеоспостереженням. Також функціонує сучасна протипожежна система.
Кількість кімнат | Площа | Цена за м2 |
---|---|---|
Однокомнатные квартиры | от 32,04 м² до 42,39 м² | 900 $ |
Двухкомнатные квартиры | от 57.23 м² | 900 $ |
Квартири від хазяїна в цьому ЖК
м.Одеса/Київський/Князя Ярослава Мудрого (Глушка Академіка) просп.
м.Одеса/Київський/Князя Ярослава Мудрого (Глушка Академіка) просп.
м.Одеса/Київський/Князя Ярослава Мудрого (Глушка Академіка) просп.
м.Одеса/Київський/Князя Ярослава Мудрого (Глушка Академіка) просп.
Популярні новобудови в цьому районі
м.Одеса/Київський/16 станція В. Фонтану
м.Одеса/Київський/вул. Академіка Вільямса