Продається 1-кімн. квартира в новобудові, Лесі Українки (Гагаріна) просп., м.Одеса
Одеса, , просп. Лесі Українки (Гагаріна)
ID 178969
Кімнат
1
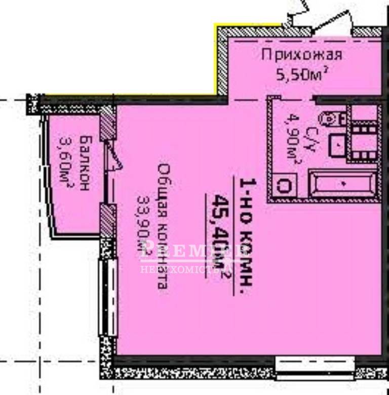
Загальна
45.4 м2
Житлова
25 м2
Кухня
12 м2
Поверх
9
Поверховість
25
Пропонується до продажу 1-кімнатна квартира, загальною площею 45 кв.м. Квартира в новому сучасному комплексі на проспект Гагаріна. Квартира розташована на 9-му поверсі 25 поверхового будинку. Панорамне скління, балкон. Вікна дивляться у бік міста, західний бік. Система Розумний дім . Закрита територія, підземний паркінг, зручна транспортна розв'язка.
63 000 USD
60 000 USD 74 118 EUR
51 000 EUR 2 784 600 UAH
2 652 000 UAH Філіявул. Преображенська, 49/51
Відповідальний спеціаліст
вищої категорії Людмила Шевченко
вищої категорії Людмила Шевченко
Показати
Додаткові послуги
Прибутковість об'єкту від оренди*
від14259грн/місяць
Схожі об`єкти
Однокімнатна квартира
м.Одеса/Приморський/2-й Черепанових пров.
Цена70 000 USD
Общая51 м2
Цена70 000 USD
51 м2
1-кімн. квартира в новобудові
м.Одеса/Приморський/Лесі Українки (Гагаріна) просп.
Цена64 000 USD
Общая49.2 м2
Цена64 000 USD
49.2 м2
Однокімнатна квартира
м.Одеса/Приморський/Середньофонтанська вул.
Цена65 000 USD
Общая58 м2
Цена65 000 USD
58 м2
1-кімн. квартира в новобудові
м.Одеса/Приморський/Гагарінське плато
Цена70 000 USD
Общая58 м2
Цена70 000 USD
58 м2