Продається 1-комн. квартира в новобудові, Гагарінське плато, м.Одеса
Одеса, Приморський, Гагарінське плато
ID 183472
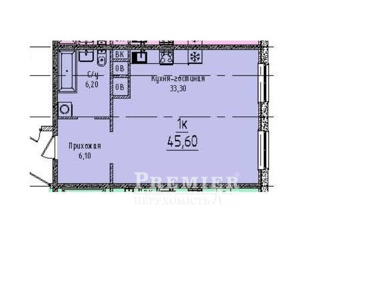
Кімнат
1
Загальна
46 м2
Житлова
12 м2
Кухня
34 м2
Поверх
18
Поверховість
25
Продаж однокімнатної квартири з шикарним видом на море. Аркадія, новий будинок. Попереду вдома лише вілли, тому вид із вікна радуватиме Вас щодня. Закрита територія, відеоспостереження і консьєрж-сервіс гарантують найвищий рівень безпеки і комфорту для мешканців комплексу. Прибудинкова зона упорядкована стильними терасами, підземним та гостьовим паркінгом, майданчиками для відпочинку, ігор та занять спортом. Комплекс має системи резервного електропостачання, пожежну сигналізацію. Квартира оснащена комплектацією системи «Розумний дім» та приладами обліку споживання комунальних послуг. Можна купити з паркінгом, за такої покупки дуже велика знижка. Телефонуйте, найкраща пропозиція в Аркадії.
61 500 USD
60 000 USD 71 551 EUR
51 572 EUR 2 690 625 UAH
2 625 000 UAH ФіліяАртура Савельєва вул.
(Черняховского) 11
(Черняховского) 11
Відповідальний спеціаліст Анна Локшина
Показати
Додаткові послуги
Прибутковість об'єкту від оренди*
від14885грн/місяць
*Середня ціна при здачі об'єкта в оренду в Приморський районі
Зміна цін на 1-комн. квартира в новобудові в Приморський районі
Схожі об`єкти
1-комн. квартира в новобудові
м.Одеса/Приморський/Краснова вул. (ЖК 61 Перлина)
Цена72 000 USD
Общая42 м2
Цена72 000 USD
42 м2
Однокімнатна квартира
м.Одеса/Приморський/Французький бульв.
Цена65 000 USD
Общая30 м2
Цена65 000 USD
30 м2
Однокімнатна квартира
м.Одеса/Приморський/Довженка вул.
Цена65 000 USD
Общая50 м2
Цена65 000 USD
50 м2