Продається 1-комн. квартира в новобудові, Лесі Українки (Гагаріна) просп., м.Одеса
Одеса, Приморський, просп. Лесі Українки (Гагаріна)
ID 189418
Кімнат
1
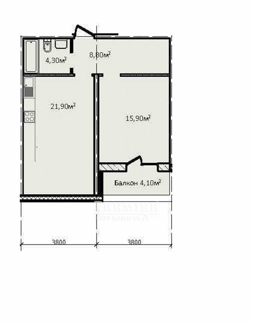
Загальна
55 м2
Житлова
19 м2
Кухня
22 м2
Поверх
6
Поверховість
24
Продаж однокімнатної квартири в новому будинку. Приморський район, поряд із Французьким бульваром. Простора кухня-студія, спальні з виходом на балкон. Є місце для вбиральні. У пішій доступності море, Траса Здоров'я, канатна дорога, парк Перемоги. До найвідомішої Аркадії – 10 хв їзди. У радіусі 10 хвилин – 5 супермаркетів. Будинок один із найпомітніших та найяскравіших проектів у Приморському районі. Телефонуйте, ми вам її покажемо
63 000 USD
61 000 USD 74 353 EUR
51 686 EUR 2 674 350 UAH
2 589 450 UAH ФіліяАртура Савельєва вул.
(Черняховского) 11
(Черняховского) 11
Відповідальний спеціаліст Анна Локшина
Показати
Додаткові послуги
Прибутковість об'єкту від оренди*
від17175грн/місяць
*Середня ціна при здачі об'єкта в оренду в Приморський районі
Зміна цін на 1-комн. квартира в новобудові в Приморський районі
Схожі об`єкти
1-комн. квартира в новобудові
м.Одеса/Приморський/Краснова вул. (ЖК 61 Перлина)
Цена72 000 USD
Общая42 м2
Цена72 000 USD
42 м2
Однокімнатна квартира
м.Одеса/Приморський/Французький бульв.
Цена65 000 USD
Общая30 м2
Цена65 000 USD
30 м2
Однокімнатна квартира
м.Одеса/Приморський/Довженка вул.
Цена65 000 USD
Общая50 м2
Цена65 000 USD
50 м2