Продається Будинок дача, Парусна вул., Лиманка (Мизикевича)
Одеська обл. / Лиманка (Мизикевича) / ул. Парусна в
ID 206115
Кімнат
3
Загальна
215 м2
Кухня
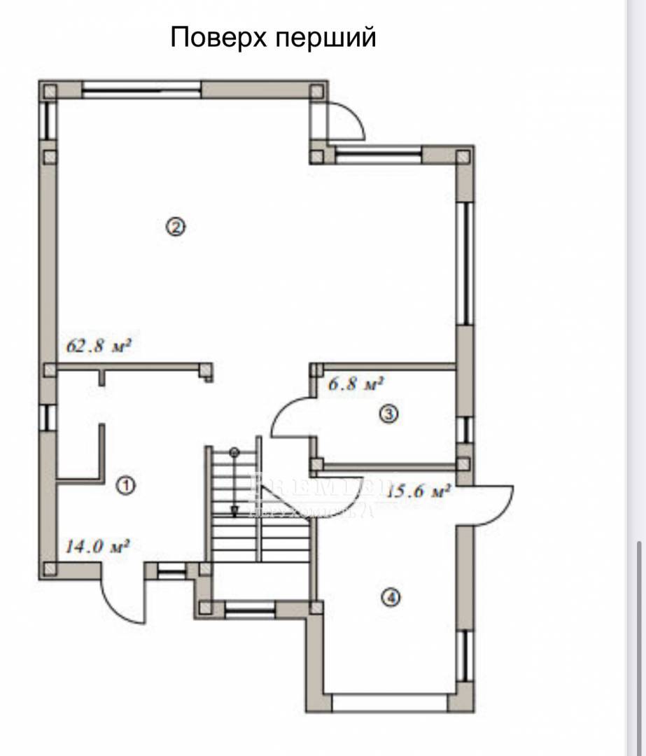
62.8 м2
Поверховість
2
Ділянка
3.12 сотки
Газ
Природный
Вода
Водопровод
Пропонується до продажу будинок у Совіньйоні 3 на ділянці 12.5 на 25 метрів. Загальна площа будинку 215 кв.м, кухня 62 кв.м, є підвал 25.7 кв.м. На першому поверсі передпокій 14 кв.м, санвузол, кухня-студія та гараж. На 2 поверсі: 3 спальні, 2 санвузли та вбиральня. У будівництві будинку витримано всі технологічні норми, будинок теплий, заведено 15 кв. газовий казан. Сантехніка фірми Ravak, Grone, Villaroy, Bosch. Ворота з дистанційним керуванням. Територія впорядкована, є басейн 3 на 4 метри. Будинок буде готовий в 2025 році, можливо внести зміни в залежності від побажання покупця. Відмінна пропозиція для життя за містом!
380 000 USD
326 396 EUR
16 891 000 UAH
Філіявул. Сахарова 24
Відповідальний спеціаліст
вищої категорії Наталія Кухтінова
вищої категорії Наталія Кухтінова
Показати
Додаткові послуги
Схожі об`єкти
Будинок дача
Одеська. обл./Одескій район/Фонтанка/Кошового вул.
Цена200 000 USD
Общая180 м2
Участок12соток
Цена200 000 USD
12 соток
Будинок дача
Одеська. обл./Одескій район/Фонтанка/Сковороди (Пушкіна) в...
Цена225 000 USD
Общая120 м2
Участок2.7сотки
Цена225 000 USD
2.7 сотки
Будинок дача
Чорноморськ/Приморська вул.
Цена300 000 USD
Общая145.3 м2
Участок10соток
Цена300 000 USD
10 соток
Будинок дача
Одеська. обл./Одескій район/Фонтанка/Миколаївська вул.
Цена250 000 USD
Общая186 м2
Участок10соток
Цена250 000 USD
10 соток