Продається Будинок дача, Айвазовського вул., Великодолинське
Одеська обл. / Великодолинське / ул. Айвазовського в
ID 208969
Кімнат
5
Загальна
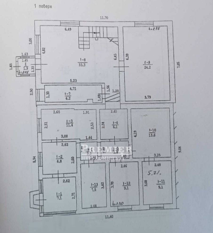
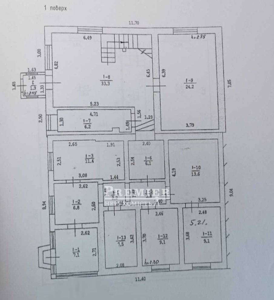
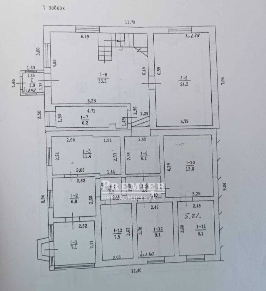
243 м2
Житлова
120 м2
Кухня
20 м2
Поверховість
2
Ділянка
6.15 соток
Газ
Природный
Вода
Водопровод
Пропонується до продажу просторий двоповерховий будинок у селі Великодолинське Одеської області. Загальна площа 243 кв.м, 5 окремих спалень, кухня та кухня-їдальня, 2 санвузли, додаткове приміщення. У будинку зроблений сучасний ремонт, продається з меблями та технікою. Встановлено двоконтурний котел, бойлер та відеоспостереження. Будинок збудований з кримського ракушняка, стіни додатково утеплені, дах – металочерепиця. У будинку два окремі входи, можна розділити на два окремі будинки. Двір укладений плиткою, чудовий район для проживання.
159 600 USD
136 769 EUR
7 084 644 UAH
Філіявул. Сахарова 24
Відповідальний спеціаліст
вищої категорії Ірина Коршикова
вищої категорії Ірина Коршикова
Показати
Додаткові послуги
Схожі об`єкти
Будинок дача
Одеська. обл./Одескій район/Фонтанка/Кошового вул.
Цена200 000 USD
Общая180 м2
Участок12соток
Цена200 000 USD
12 соток
Будинок дача
Одеська. обл./Одескій район/Доброслав (Комінтернівське)/Першотравнева
Цена120 000 USD
Общая58 м2
Участок8.5соток
Цена120 000 USD
8.5 соток
Будинок дача
Одеська. обл./Одескій район/Фонтанка/Сковороди (Пушкіна) в...
Цена225 000 USD
Общая120 м2
Участок2.7сотки
Цена225 000 USD
2.7 сотки
Будинок дача
Одеська. обл./Одескій район/пгт. Таїрове/масив №21
Цена136 000 USD
Общая136 м2
Участок3сотки
Цена136 000 USD
3 сотки