Продається 1кімнатна квартира, Літературна вул., м.Одеса
Одеса, Приморський, ул. Літературна в
 ID 76038
Кімнат
 1
 Загальна
 61.3 м2 
 Житлова
 26 м2
 Кухня
 26 м2 
 Поверх
 11
 Поверховість
 21
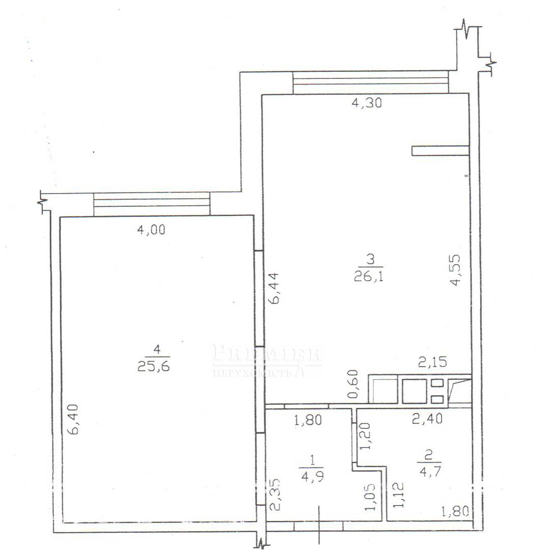
  Новий зданий ЖК «Руслан і Людмила» розташований в курортній зоні на 8-й станції Великого Фонтану по вулиці Літературной.1-но кімнатна квартира 62 кв.м. загальної площі з просторою кухнею-студією 26м2 на 11-му поверсі 21-ти поверхового будинку. Розвинена інфраструктура, під охороною упорядкована територія, свій внутрішній двір для дитячих майданчиків і відпочинку. Підземний паркінг, гостьова парковка.Море і парк в пішої доступності! Ідеальні умови для гідного життя!  
  78 000 USD 
  67 028 EUR 
  3 287 700  UAH 
 ФіліяАртура Савельєва вул.
  Відповідальний спеціаліст
вищої категорії Наталія Подима
  вищої категорії Наталія Подима
   Показати
 
 Додаткові послуги
 Прибутковість об'єкту від оренди*
від17454грн/місяць
 *Середня ціна при здачі об'єкта в оренду в Приморський районі
Зміна цін на однокімнатні квартири в Приморський районі
Схожі об`єкти
            
            Однокімнатна квартира
            
        м.Одеса/Приморський/Французький бульв.
Цена65 000 USD
                            Общая30 м2
                                Цена65 000 USD
30 м2
        
            
            Однокімнатна квартира
            
        м.Одеса/Приморський/Довженка вул.
Цена65 000 USD
                            Общая50 м2
                                Цена65 000 USD
50 м2
        
            
            Однокімнатна квартира
            
        м.Одеса/Приморський/Середньофонтанська вул.
Цена69 000 USD
                            Общая63 м2
                                Цена69 000 USD
63 м2
         
  
  
  
 