Продається ЖК Акварель - 4, Профспілкова, 9А, м.Одеса

Одеса, , Профспілкова, 9А
Характеристики ЖК Акварель - 4
Початок будівництва:
4 квартал 2019
Завершення будівництва:
4 квартал 2022
Конструктив будинку
Поверховість:
11
Конструктив:
Монолитно-каркасный+газобетон
Утеплення:
комбинированная фасадная система с дополнительным утеплением минеральной ватой толщиной 100мм.
Міжквартирні:
Газобетон
Стан житла
Вікна:
Метало-пластиковый профиль
Висота приміщення:
2,8
Опалення:
Автономное
Інженерні системи
Ліфт:
Пассажирский и грузопассажирский
Безпека:
видео наблюдение, закрытый охраняемый двор,вход в дом по скретч карте
Паркінг:
наземный гостевой паркинг

ЖК "Акварель-4"

Малиновський район поступово наздоганяє інші райони Одеси за кількістю новобудов. Незабаром він поповниться новим житловим комплексом «Акварель-4». Це житло комфорт-класу, яке виконується з високоякісних будівельних матеріалів з впровадженням інноваційних технологій. Район, в свою чергу, відрізняється зручною транспортною розв'язкою, яка проходить в пішої доступності від комплексу, а також розвиненою інфраструктурою, представленої всім необхідним для повноцінного проживання.

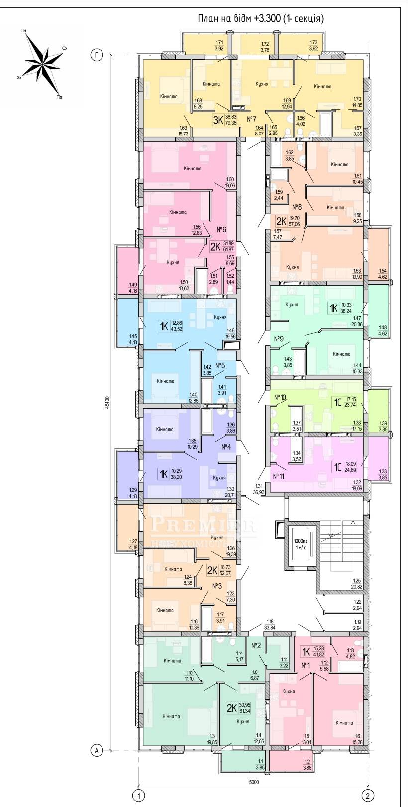
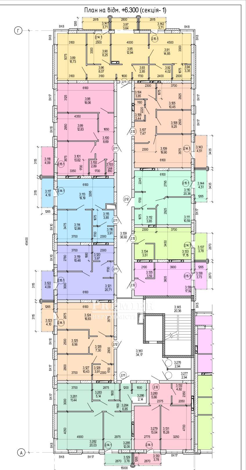
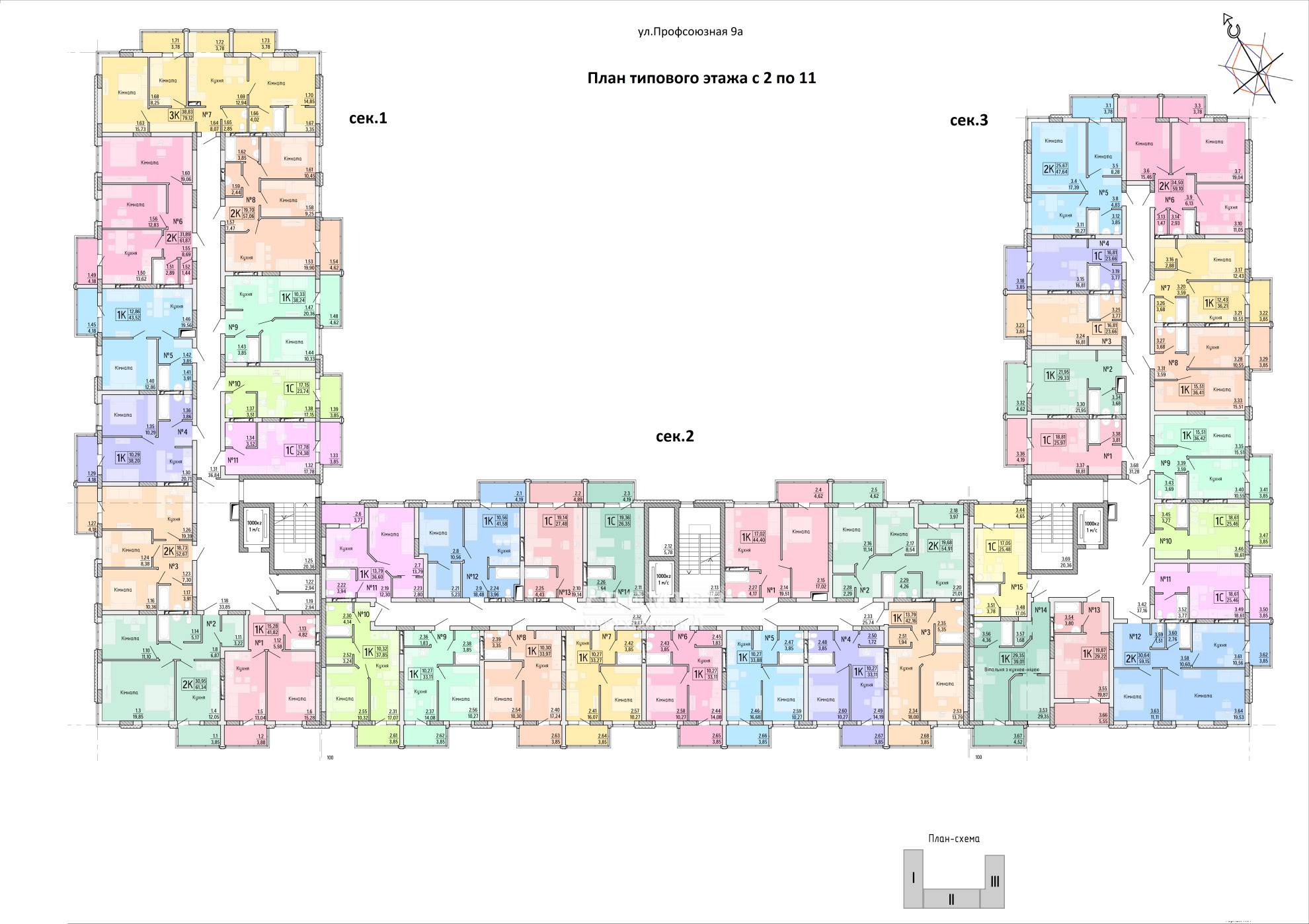
Комплекс складається з 3 секцій і 11 поверхів. Конструкція монолітно-каркасна, яка базується на пальовій фундаменті з монолітним залізобетонним ростверком. Стіни виконуються з газобетону з мінеральною ватою як утеплювач, а перекриття - монолітні залізобетонні. Фасад штукатуриться, покривається спеціальними фасадними фарбами і прикрашається оригінальними елементами декору. Будівля обладнується швидкісними безшумними ліфтами нового покоління.

У комплексі представлені просторі квартири з сучасним плануванням, численними зручностями і раціональної площею. Висота стель становить 2,8 метрів. Система опалення представлена окремою газової котельні. У квартири тепло надходить за рахунок радіаторів з терморегулирующим обладнанням, а зберегти його дозволять металопластикові вікна - п'ятикамерний профіль з трьома стеклами. На вході монтуються міцні металеві двері.

Прибудинкова територія ушляхетнюється. Проектом передбачена висадка квітів і дерев. Також буде обладнано безпечні дитячі та спортивні майданчики, виділені місця для відпочинку та піших прогулянок. Весь комплекс знаходиться під цілодобовою охороною з відеоспостереженням, а також оснащений передовою протипожежною системою.

 

Закінчення будівництва: 4   квартал 2022 року.

Кількість кімнат
Площа
Цена за м2
Смарт квартиры
22,48-29,22 м²
830 $
Однокомнатные квартиры
36,41-59,1 м²
830 $
Двухкомнатные квартиры
52,67-61,87 м²
830 $
Трехкомнатные квартиры
79,18 м²
830 $
от 44 100
ГРН. / кв.м
USD
UAH
Компанія Прем'єр є офіційним партнером будівельної компанії. Об'єкти продаються без будь-якої комісії.
Контакти менеджерів з продажу
ул. Космонавтов, 32
Задати питання
Призначити огляд
Подивитись на карті
Додаткові послуги