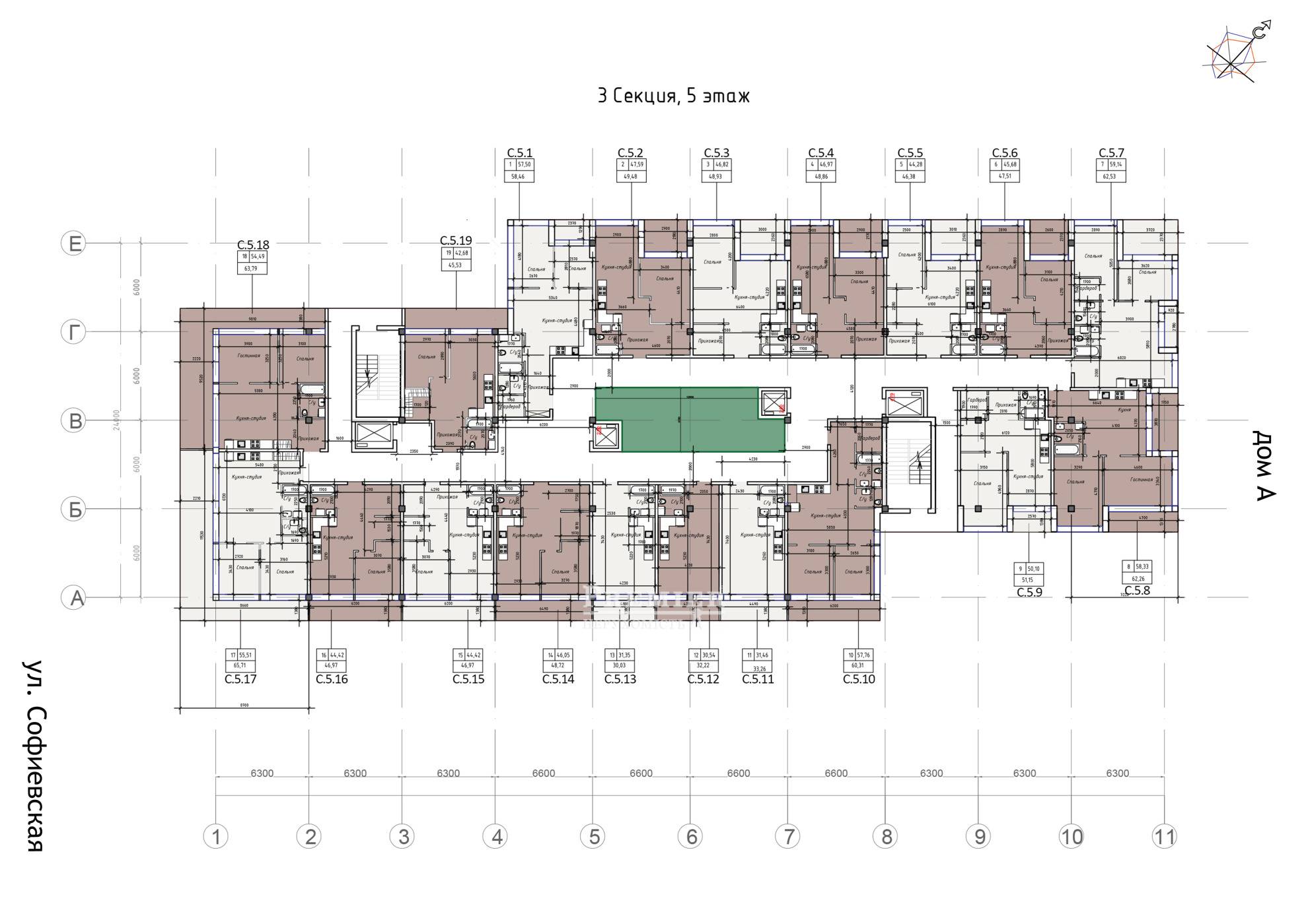
Продається ЖК ITown, вул.Софіївська, м.Одеса

Одеса, Центральном, ул. вСофіївська
Знижка -3% при ПВ 50%
- знижка -5% при ПВ 75%
- знижка -10% при 100% оплаті



Характеристики ЖК ITown
Початок будівництва:
Завершення будівництва:
1 квартал 2025
Конструктив будинку
Поверховість:
9
Конструктив:
Монолитно-каркасный+газобетон
Міжквартирні:
Газобетон
Стан житла
Вікна:
Алюминиевый профиль
Висота приміщення:
3
Опалення:
Автономное
Інженерні системи
Безпека:
есть
Паркінг:
есть

ЖК "Простір ITown"

Чудове житло з дивовижним краєвидом на панораму Одеси зводиться в самому серці міста. Йдеться про новому житловому комплексі з оригінальною назвою «ITown». Зводиться він в Приморському районі, але у відносно тихій і відокремленої його частини. Проте, в пішій доступності представлено все, що може знадобитися, включаючи медичні установи, дитячі сади, школи, спортивні секції, магазини, торгово-розважальні та бізнес-центри, розважальні заклади і т.д. Крім того, поруч проходять провідні автомагістралі міста і затребувані маршрути громадського транспорту.

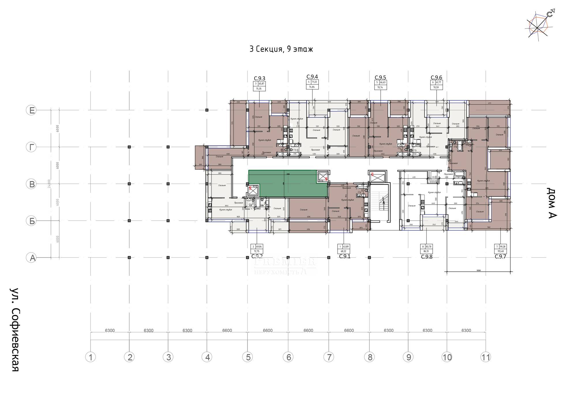
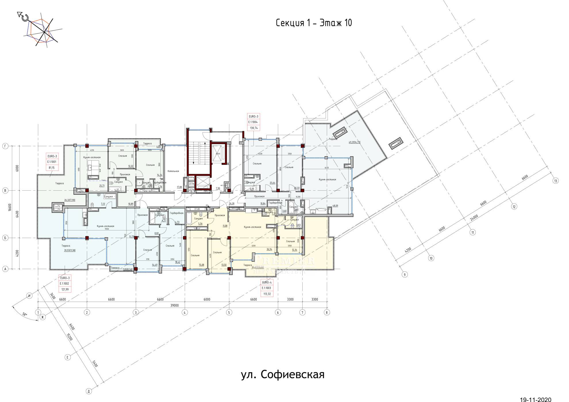
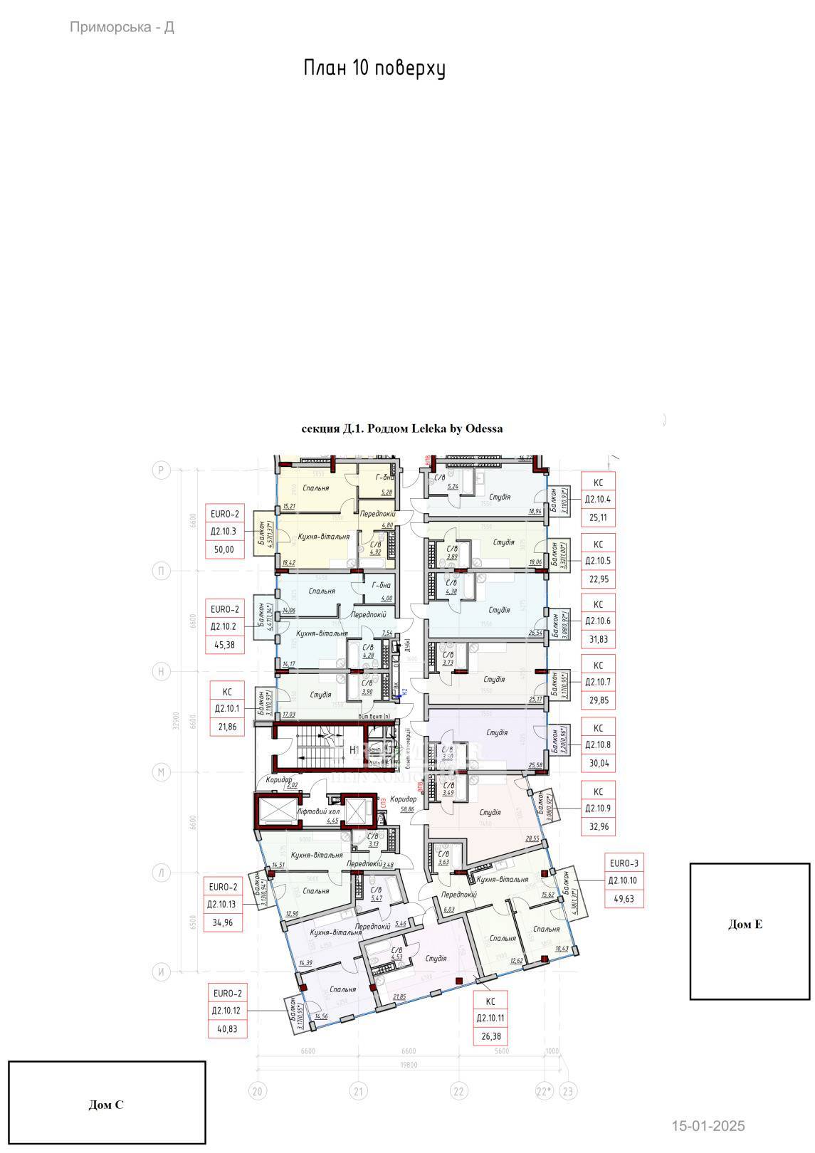
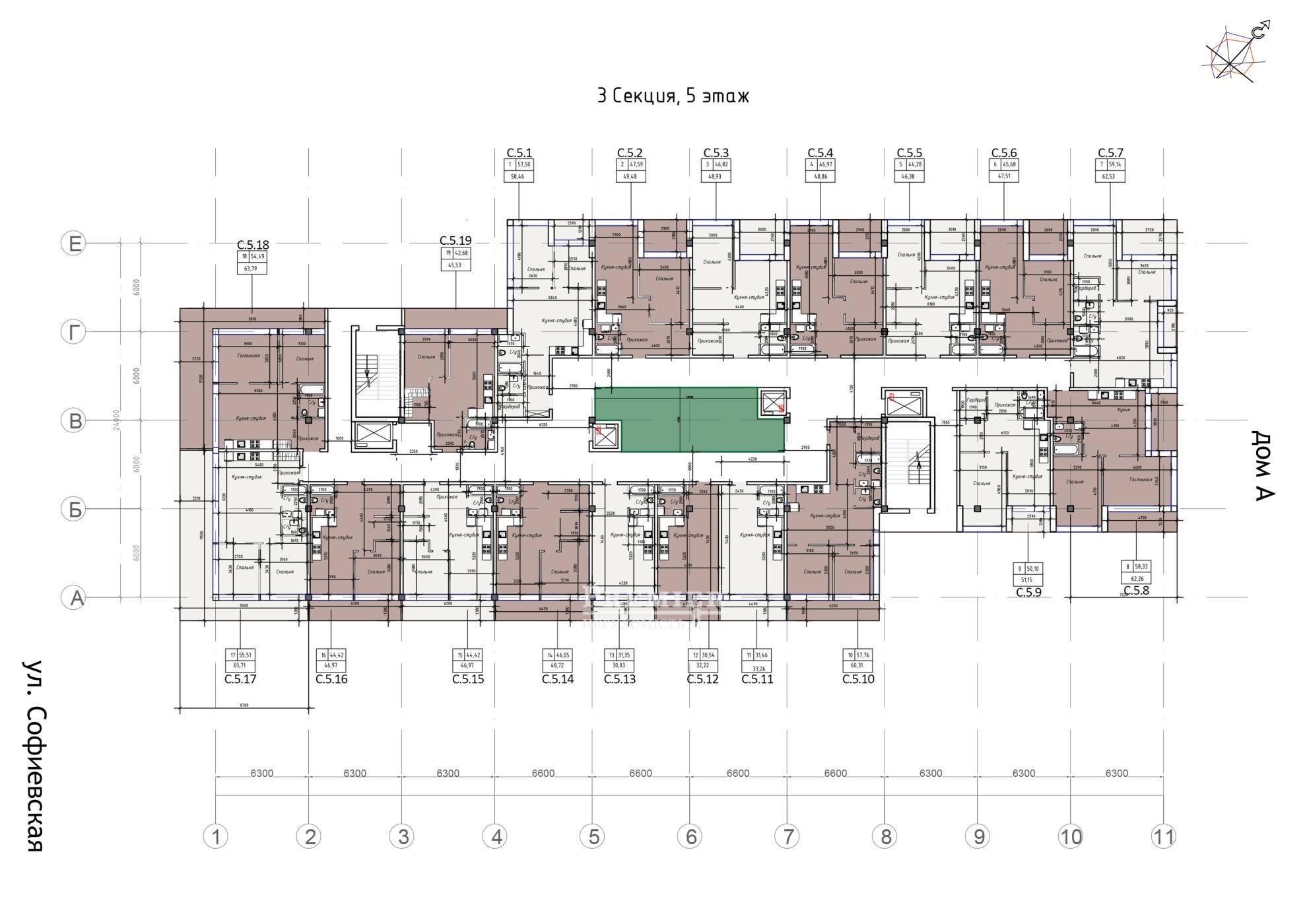
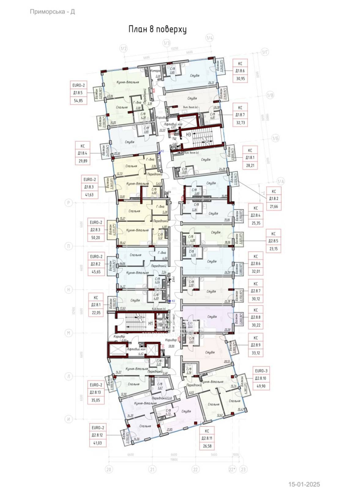
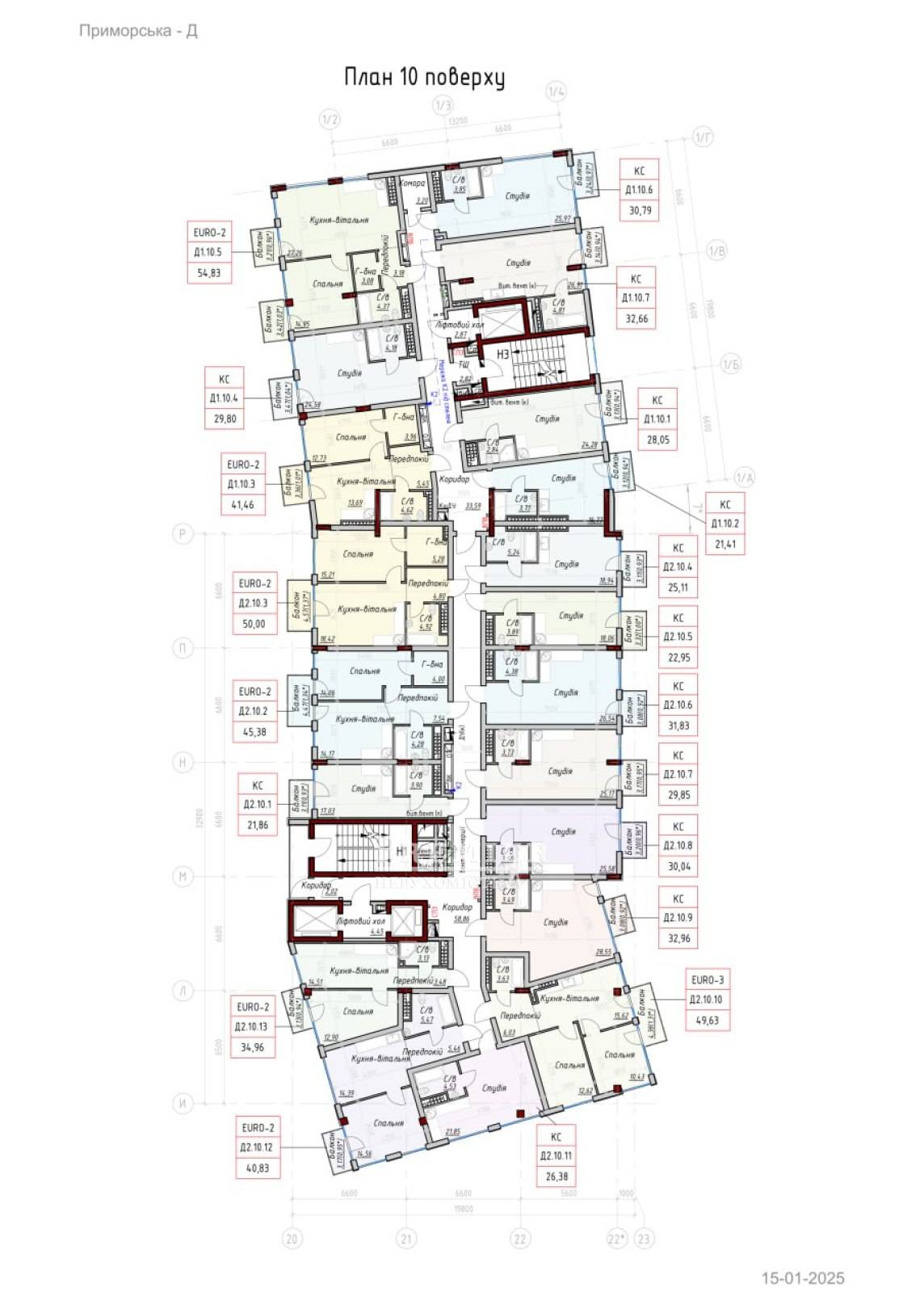
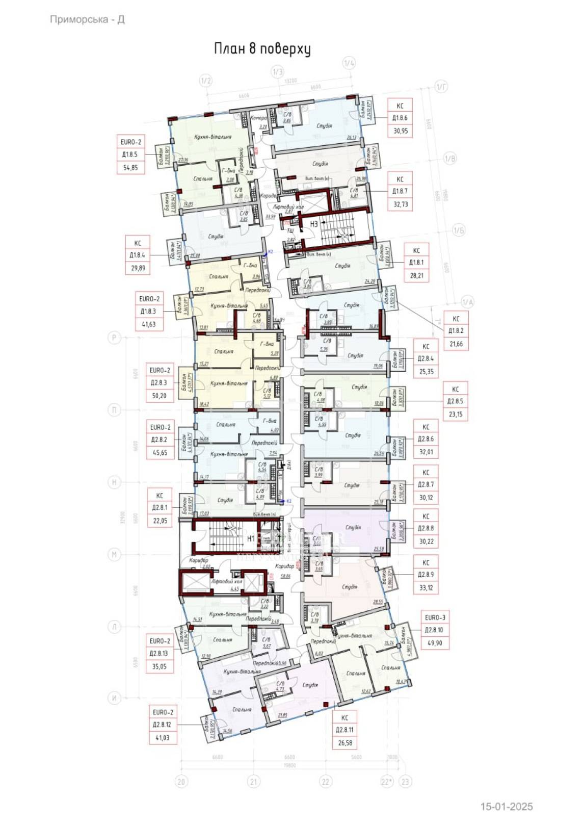
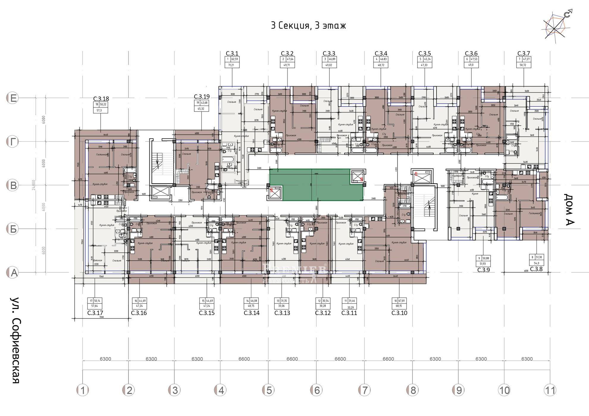
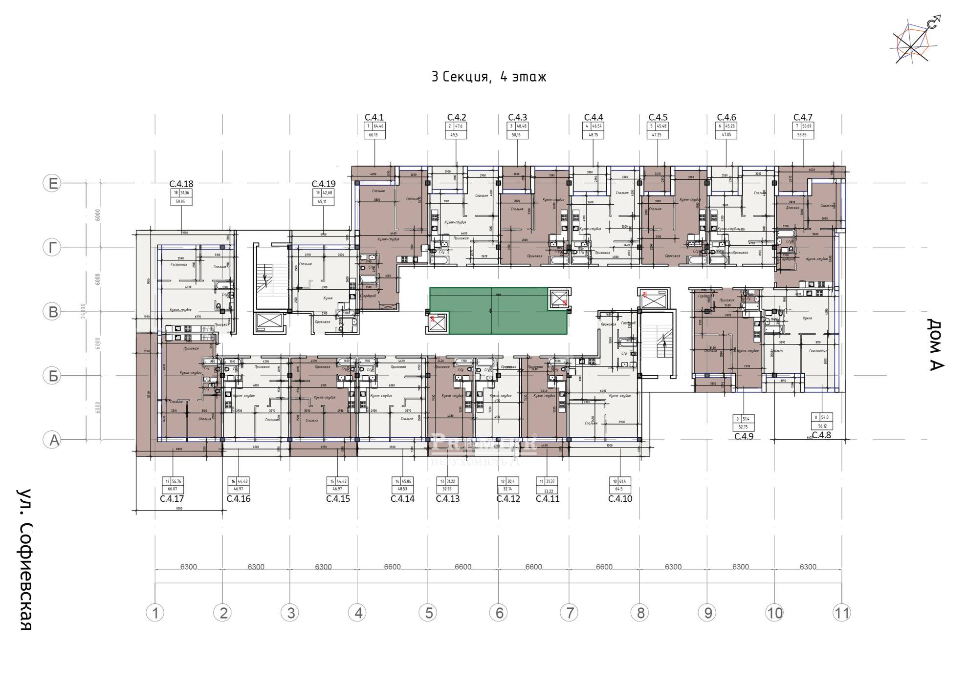
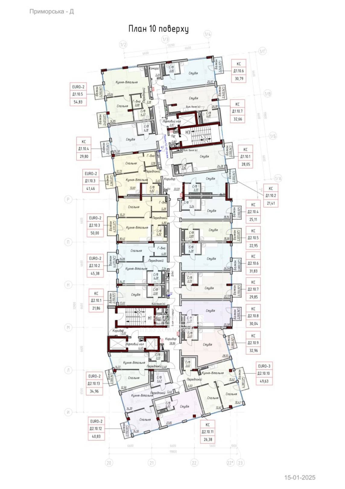
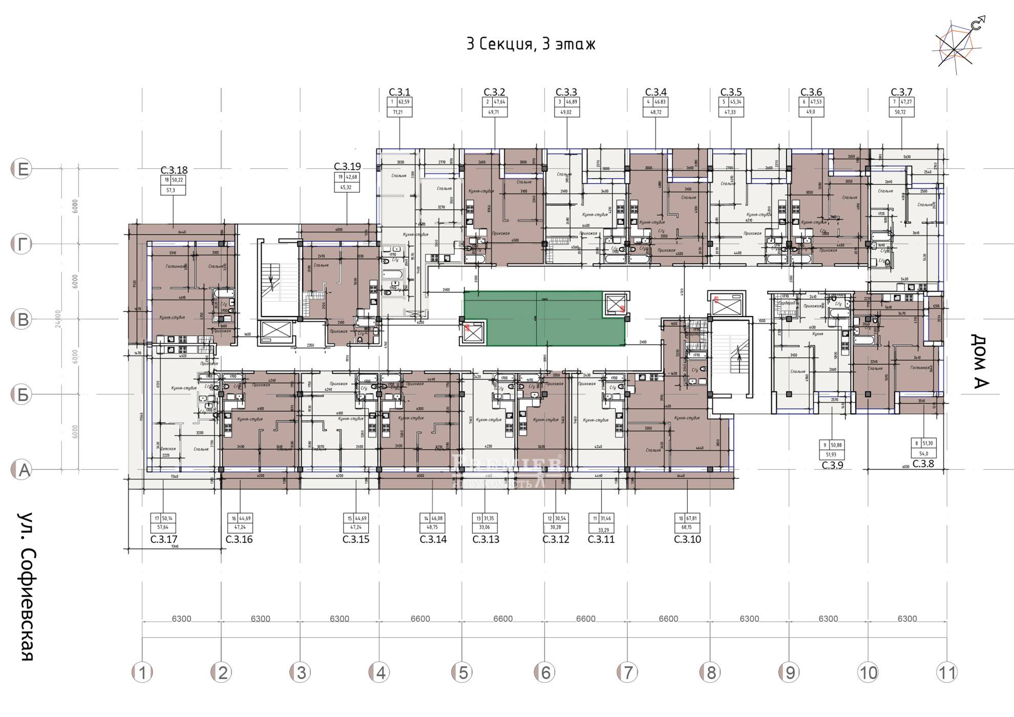
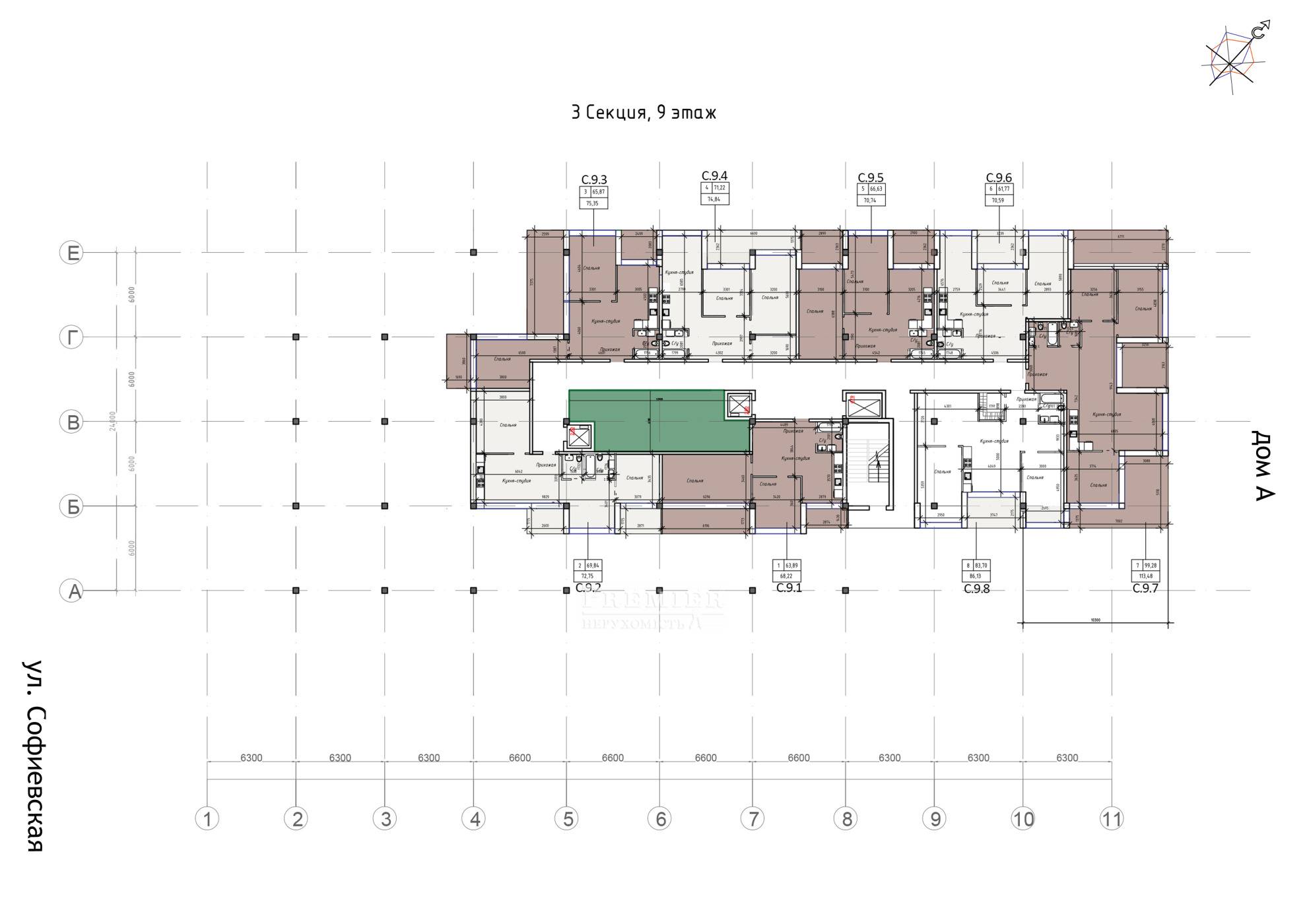
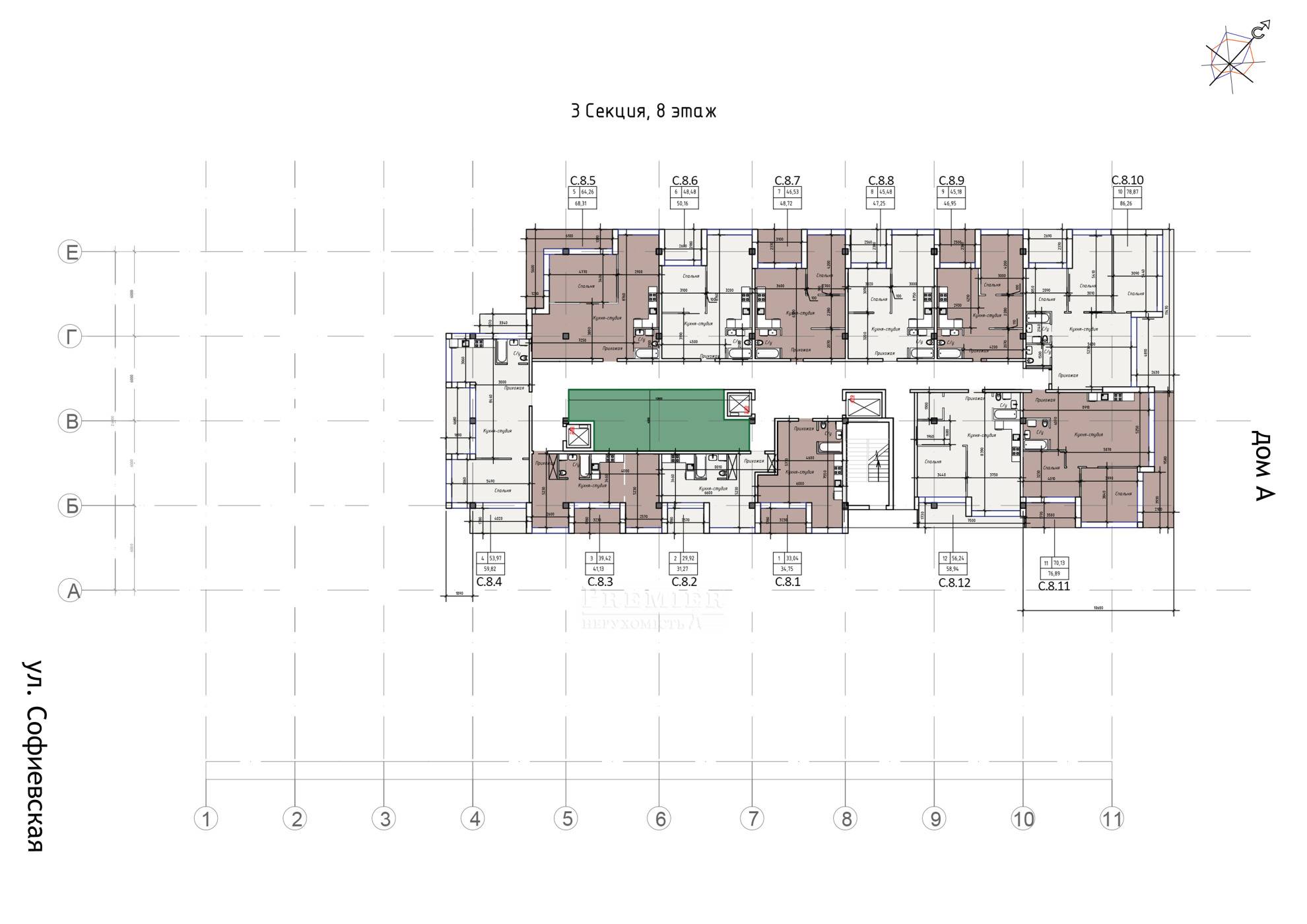
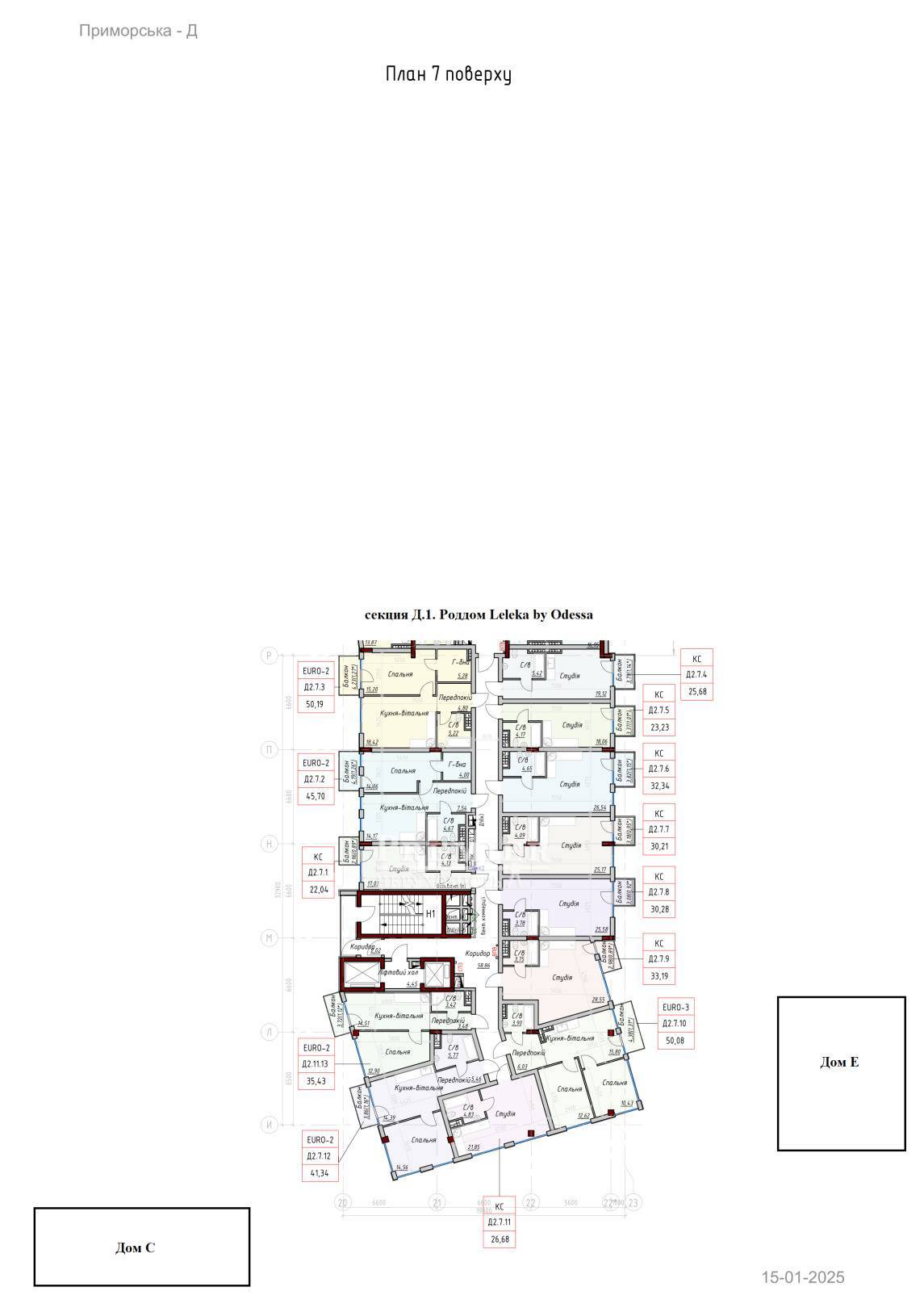
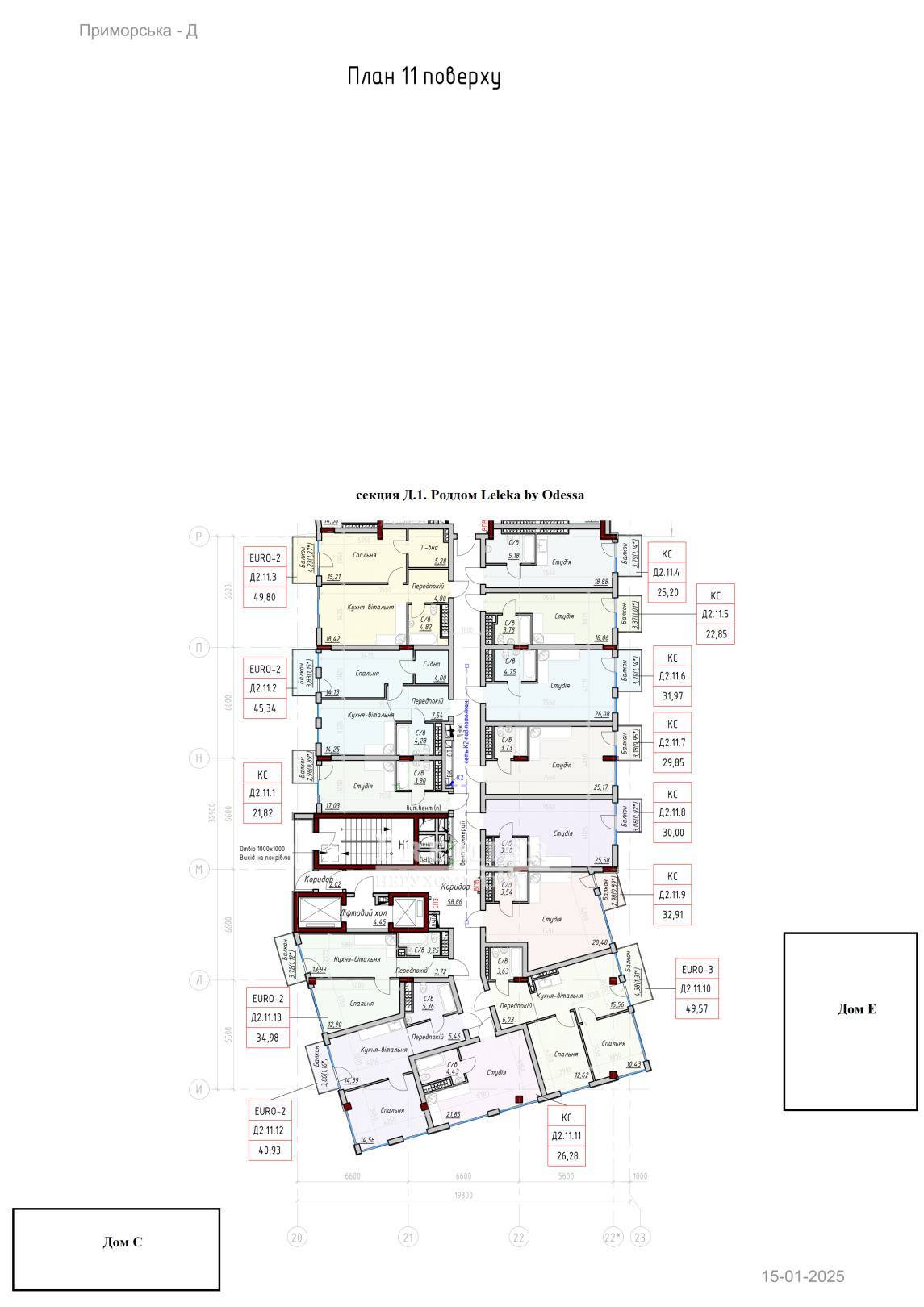
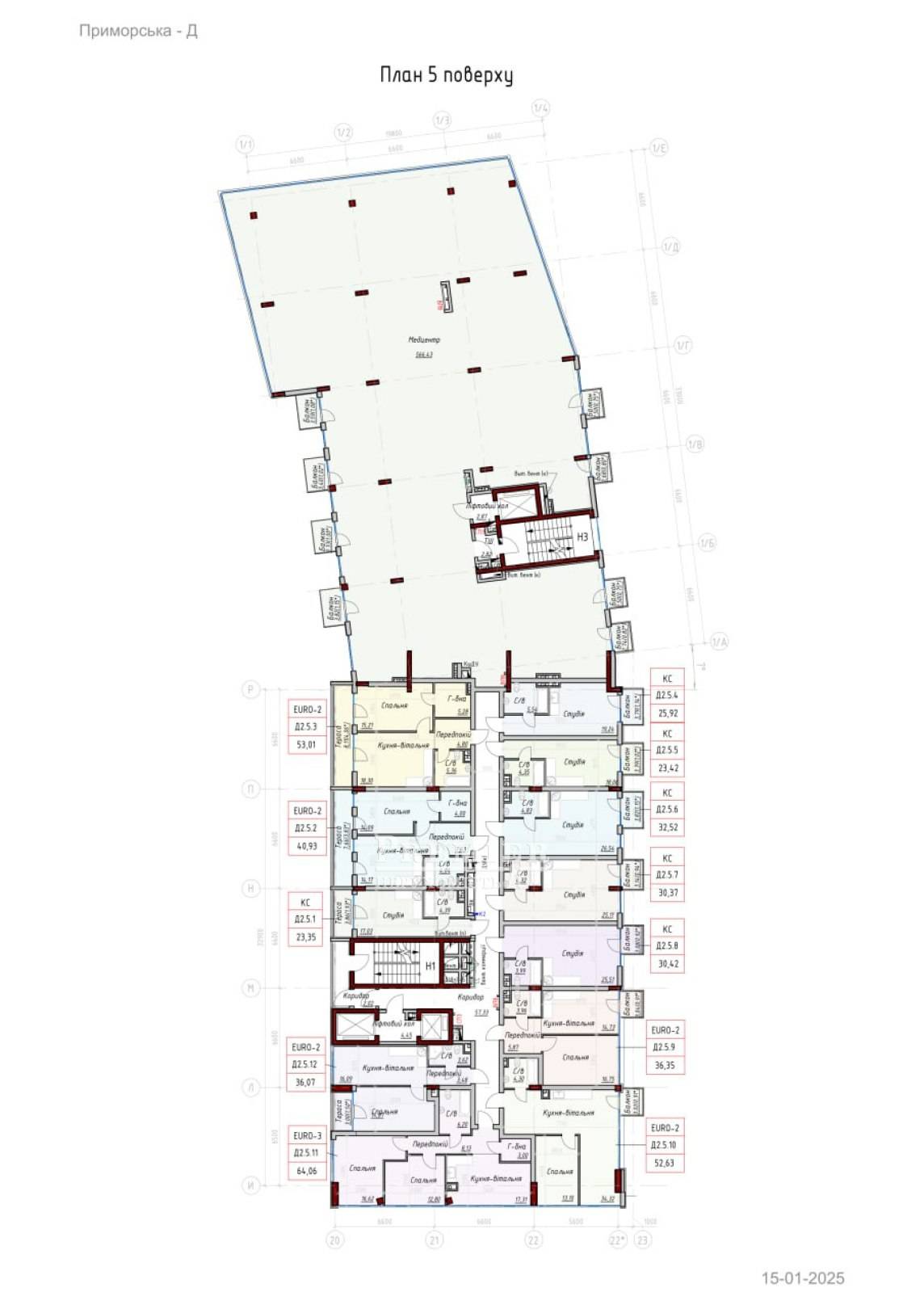
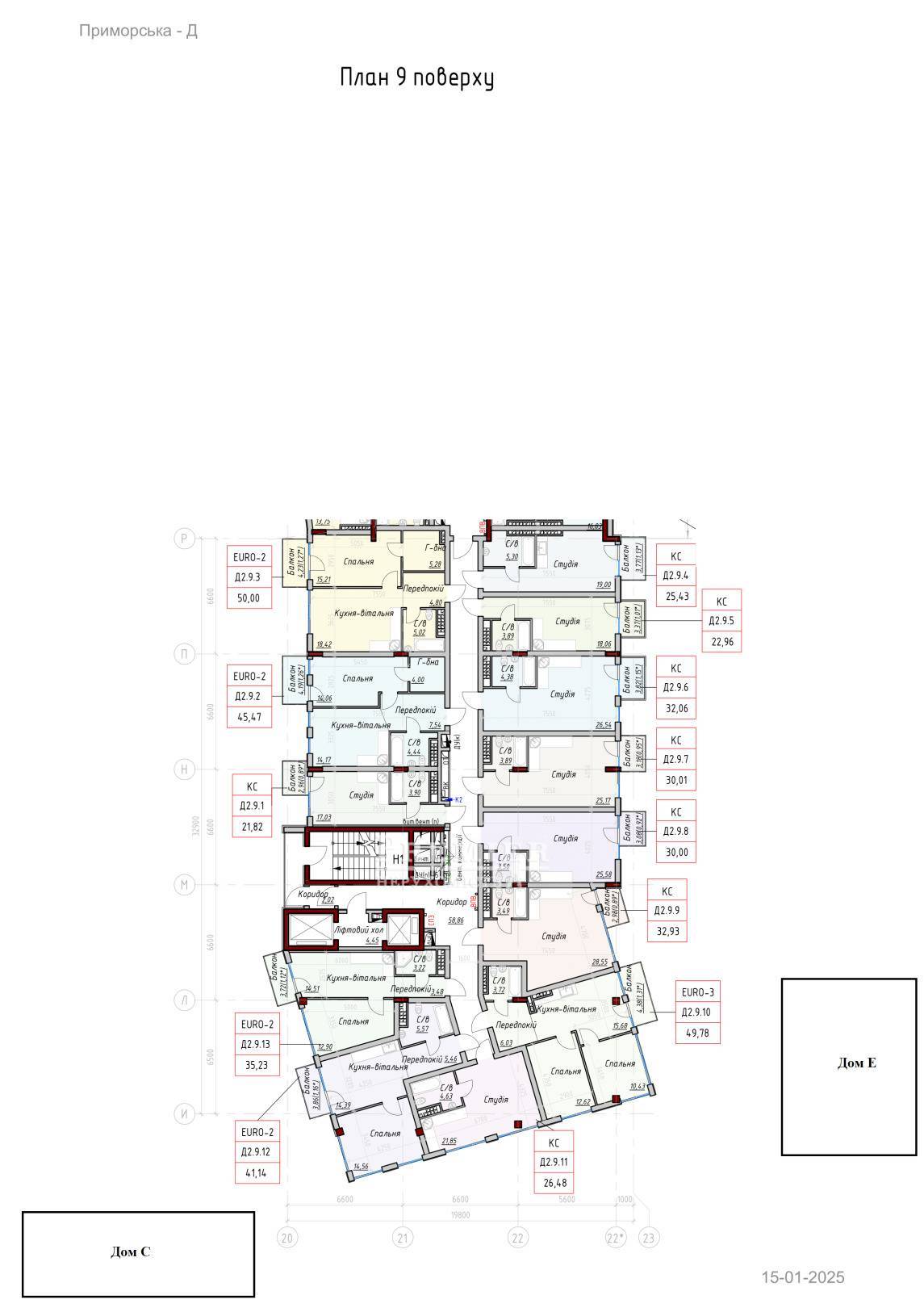
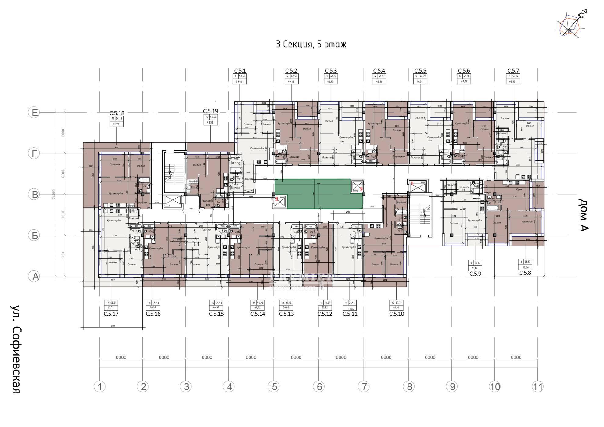
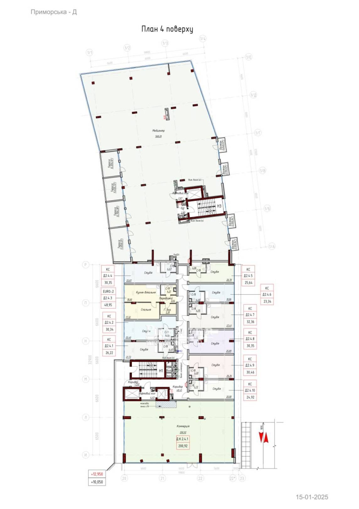
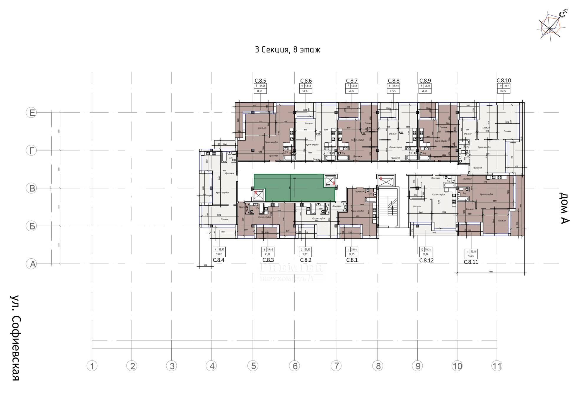
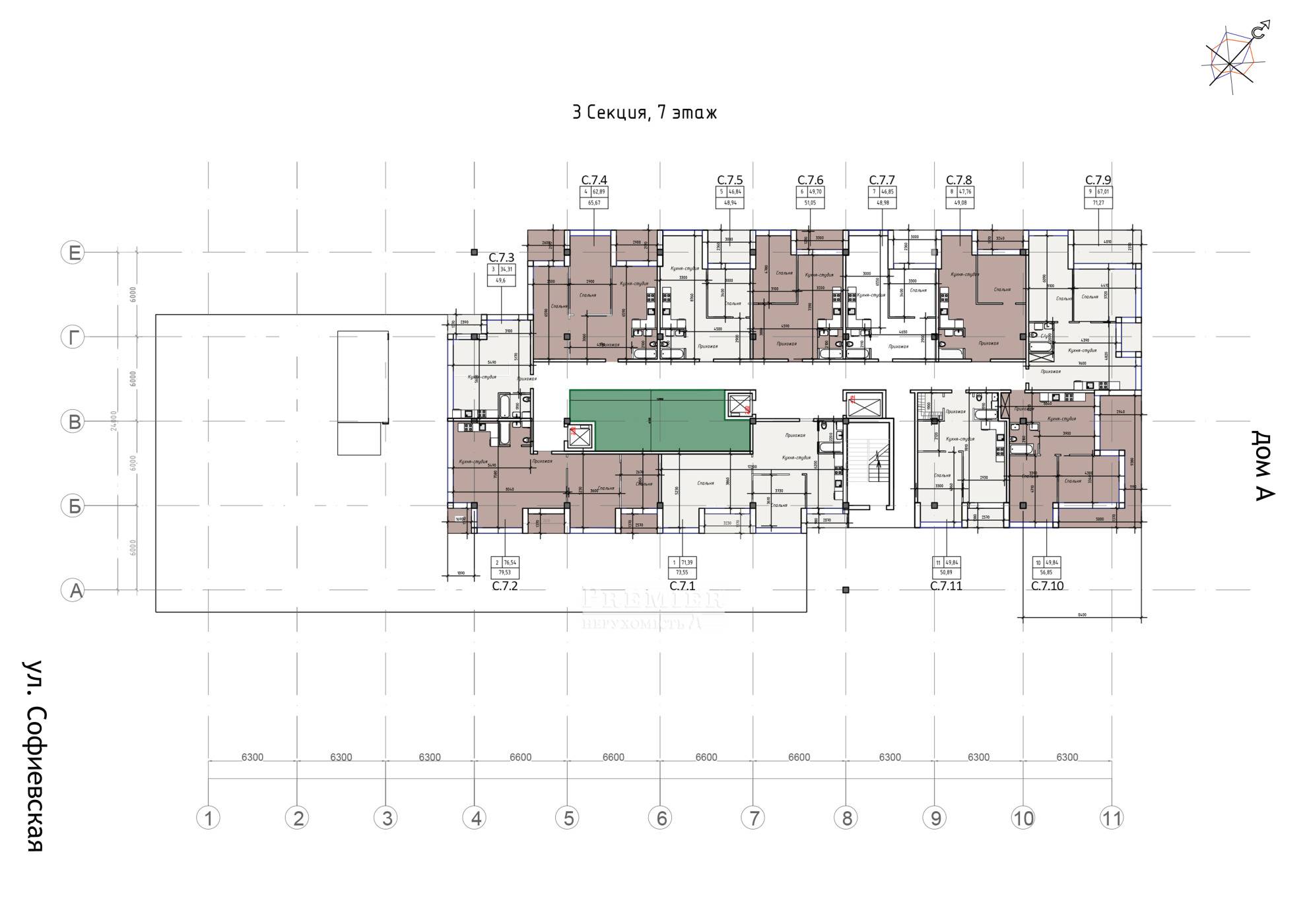
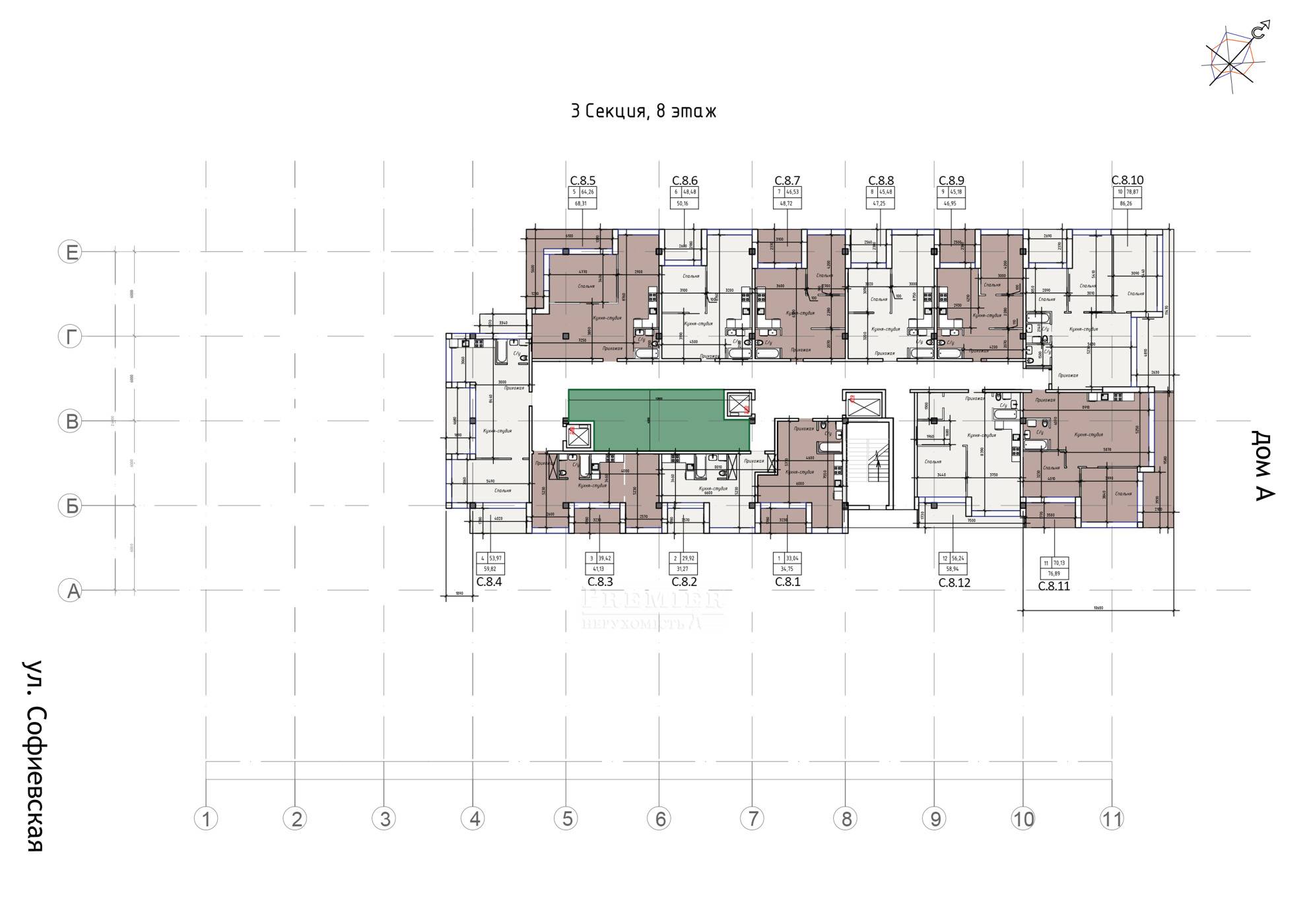
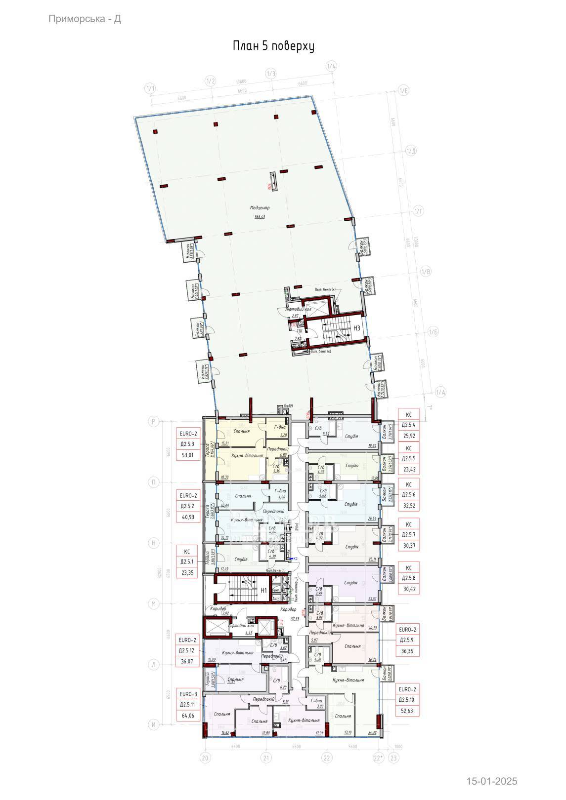
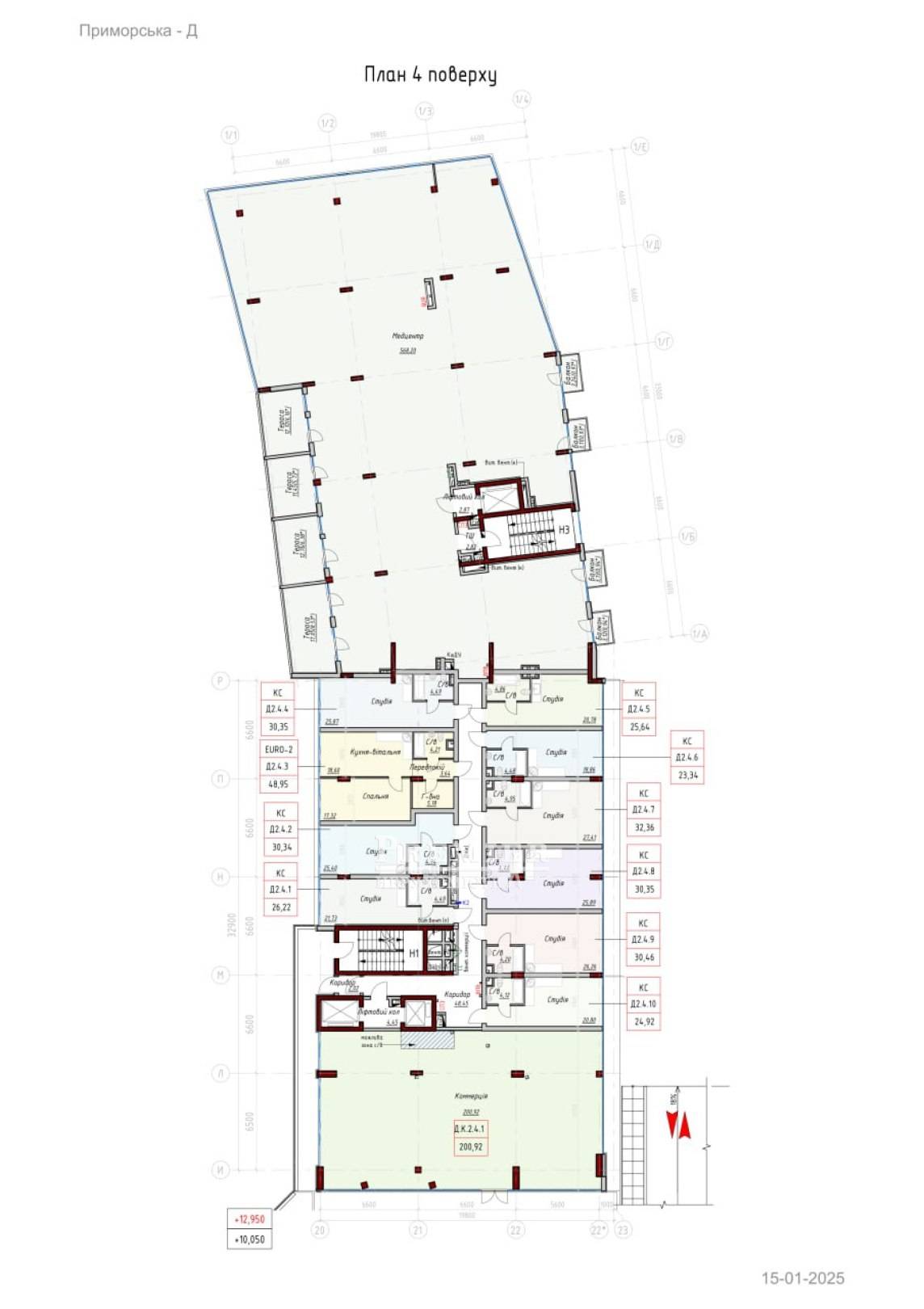
Комплекс складається з чотирьох секцій, поверховістю 9-25. Монолітно-каркасна конструкція базується на міцному фундаменті, представленому монолітним залізобетонним ростверком на пальовій підставі. Стіни зводяться з газобетону і керамоблока. Крім того, використовується комбінована фасадна обробка і фасадна облицювальна цегла. Утеплення здійснюється за рахунок застосування базальтових плит (50 мм). У комплексі встановлюються швидкісні, безшумні ліфти. Також облаштовуємо місткий підземний паркінг на 600 місць.

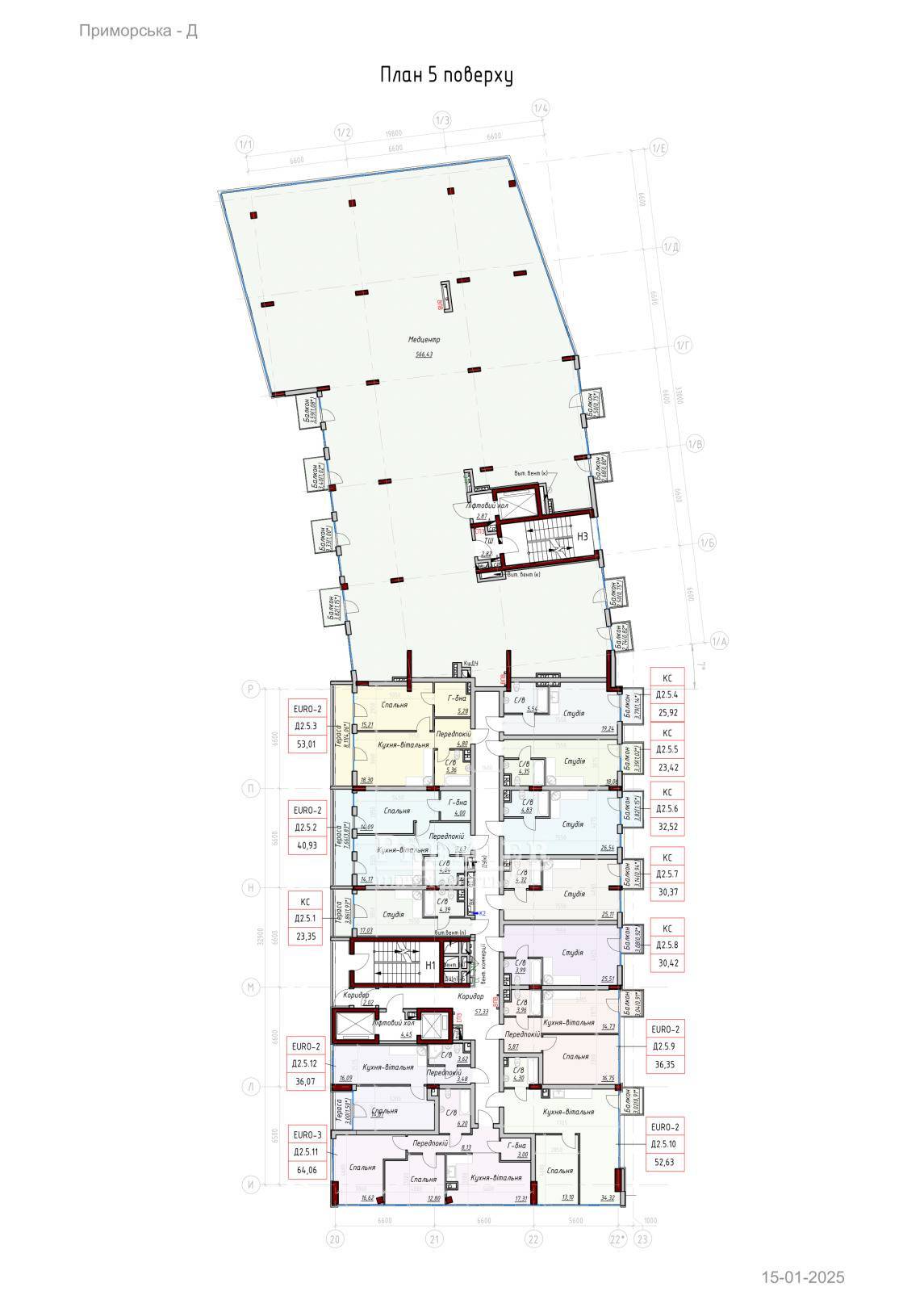
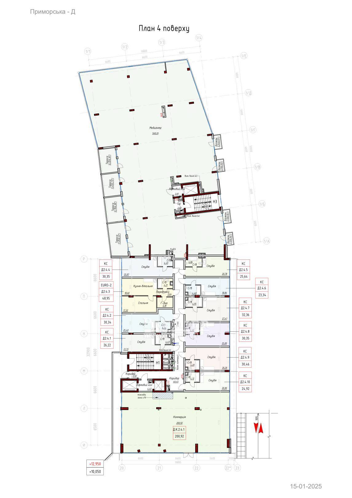
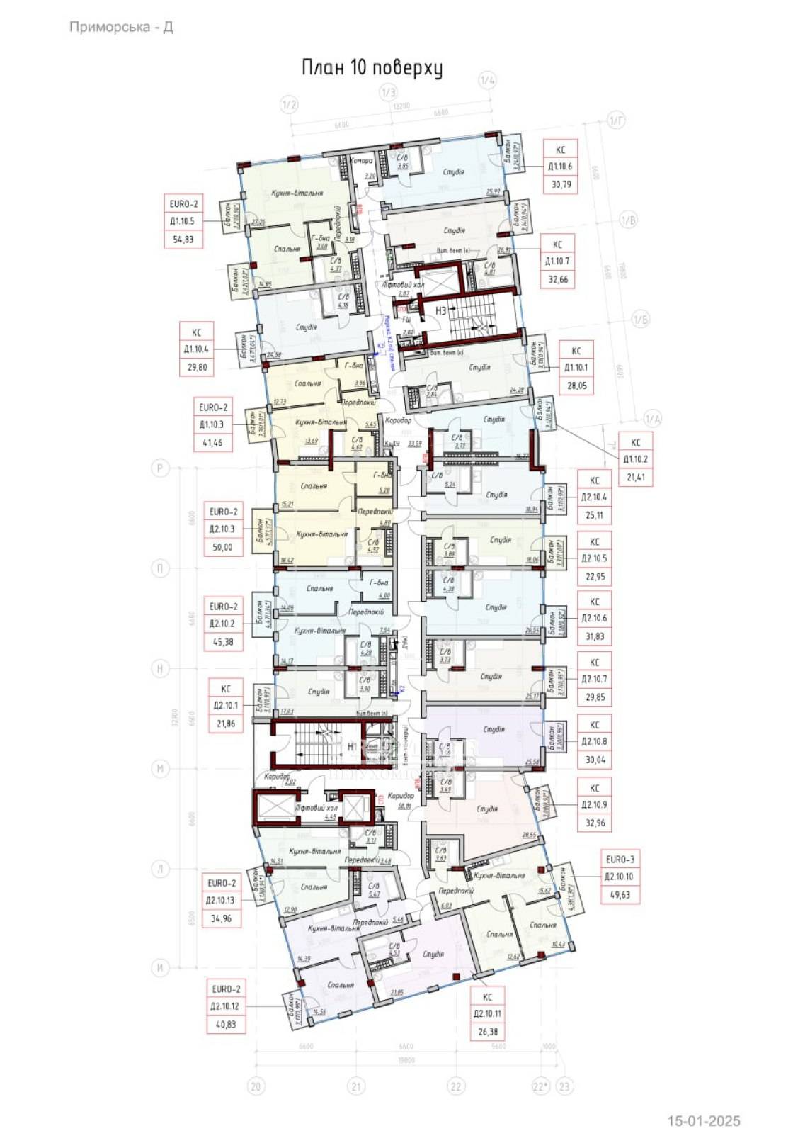
У ЖК можна придбати квартири з однією і двома кімнатами. Вони характеризуються сучасним плануванням і численними зручностями. Площа найменшої квартири становить 22 квадратних метра, а найбільшою - 67 квадратних метрів. Висота стель досягає 3 метри. На даху облаштовується газова котельня, тепло від якої буде надходити в квартири через опалювальні прилади. На вході встановлюються броньовані двері, обшиті згідно дизайнерським проектом.Зберегти його дозволять металопластикові вікна з енергозберігаючими склопакетами.

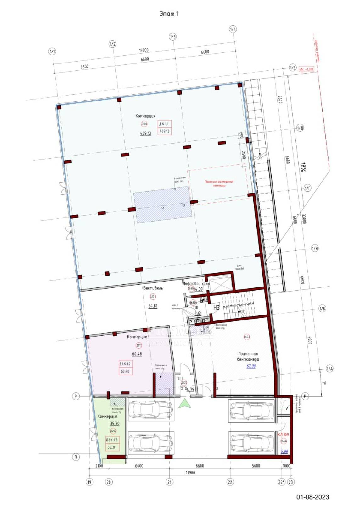
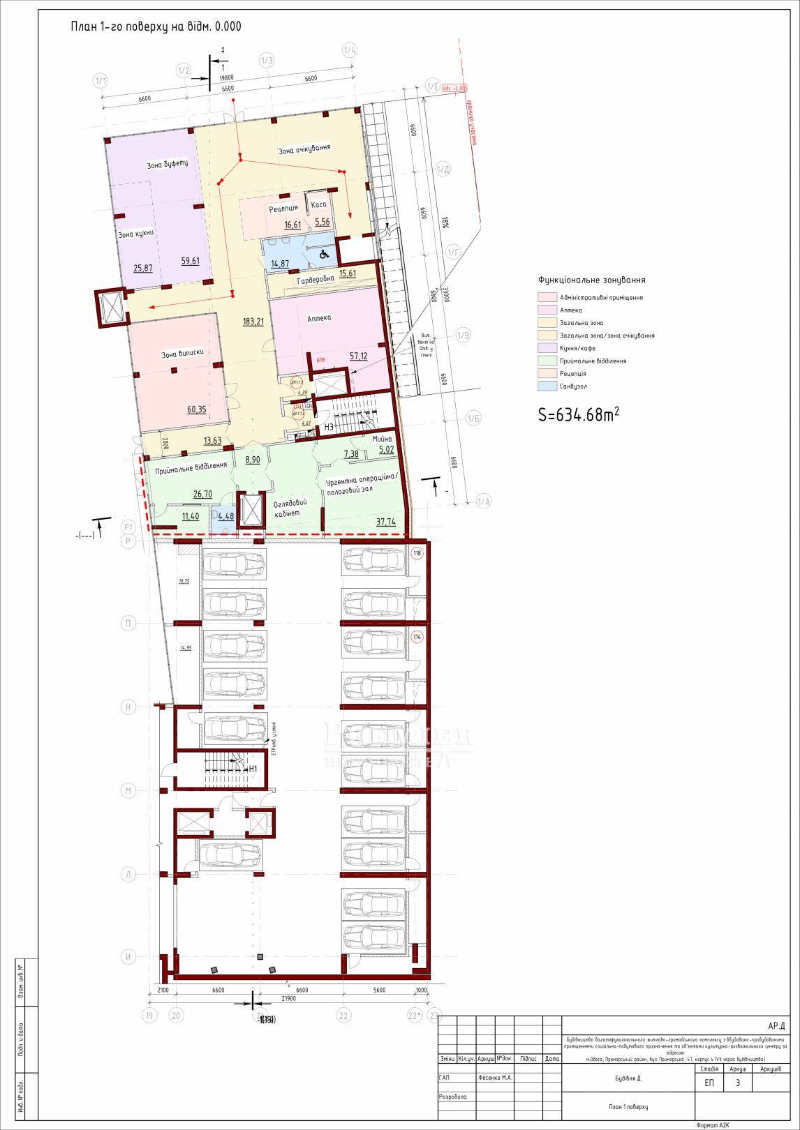
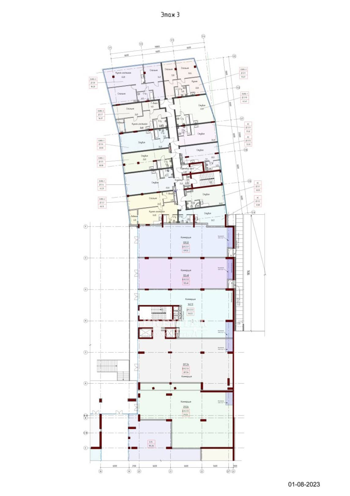
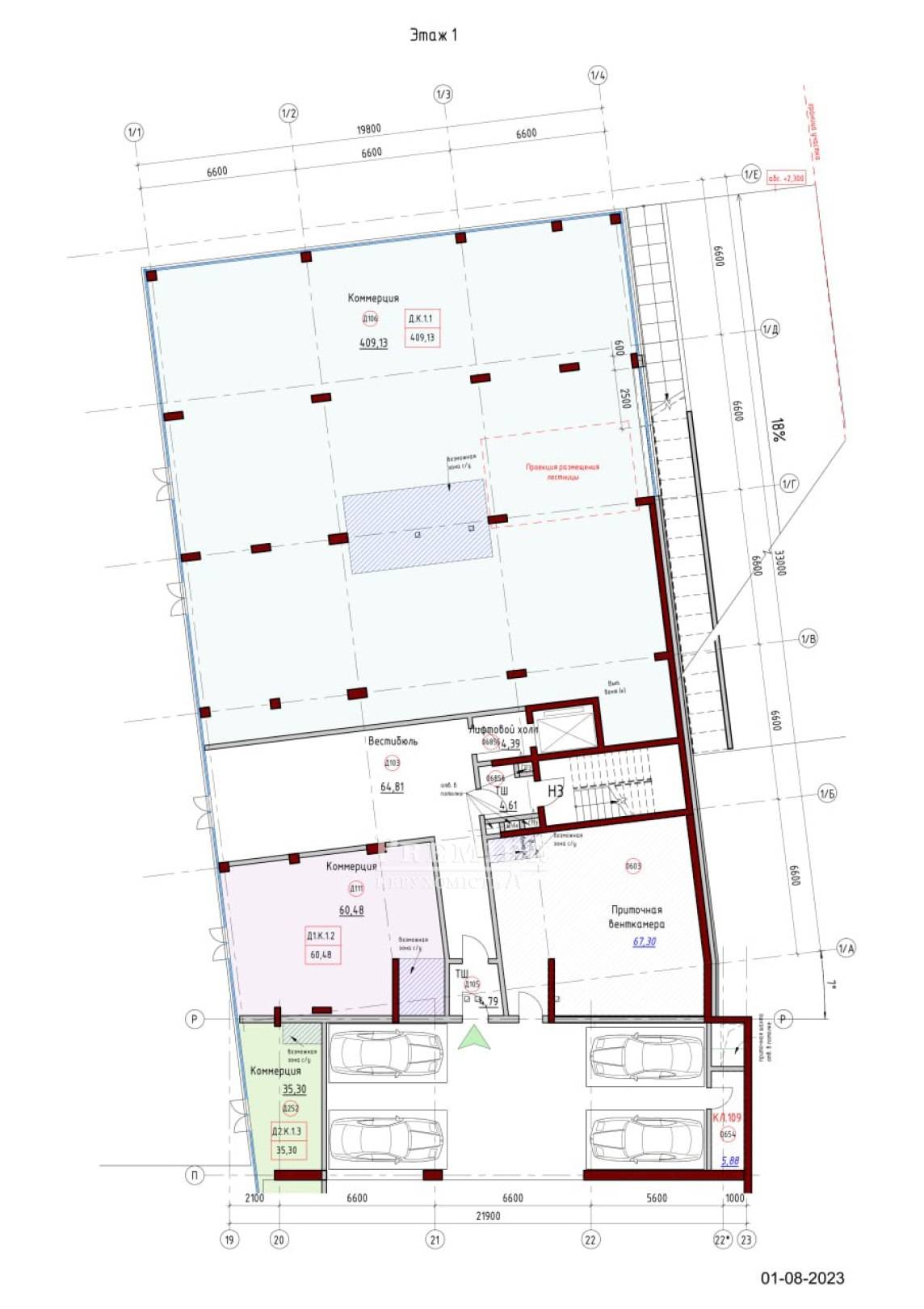
Прибудинкова територія приводиться в порядок і упорядковується. На перших поверхах комплексу виділяються комерційні приміщення під кав'ярню, салон краси, кінотеатр (7 залів - 1000 місць), бутики, конференц-зали, коворкінг і т.д. По всьому комплексу функціонує цілодобова охорона з відеоспостереженням, а також сучасна протипожежна система (сигналізація, димовидалення, пожежогасіння).

Закінчення будівництва: 1  квартал 2025   р.

от 50 715
ГРН. / кв.м
USD
UAH
Компанія Прем'єр є офіційним партнером будівельної компанії. Об'єкти продаються без будь-якої комісії.
Контакти менеджерів з продажу
ул. Преображенская, 49/51
Артура Савельева ул (Черняховского). 11
Задати питання
Призначити огляд
Подивитись на карті
Додаткові послуги