Продается "Semila" ( Семила) в жилмассиве Дайберг, ул. Коллекционная, Лиманка (Мизикевича)

Одесская обл. / Лиманка (Мизикевича) / ул. Коллекционная
При первоначальном взносе от 30% - остаток без удорожания на 24 месяцев.
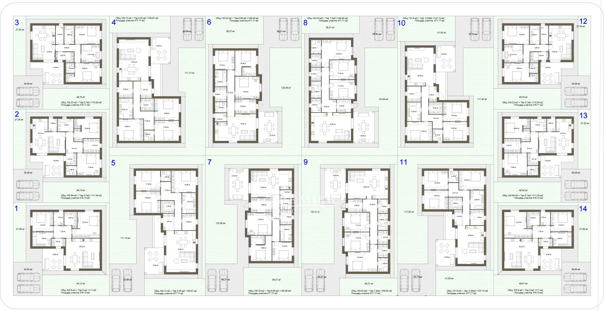
Осталось 2 дома !



Характеристики "Semila" ( Семила) в жилмассиве Дайберг
Начало строительства:
3 квартал 2021
Окончание строительства:
4 квартал 2025
Конструктив дома
Этажность:
1
Конструктив:
Каркасный
Утепление:
Минеральная вата, штукатурка с декоративными элементами и окраска атмосфероустойчивой краской
Межквартирные:
Газобетон
Состояние жилья
Окна:
Метало-пластиковый профиль
Высота помещения:
3
Отопление:
Индивидуальное

Новое комфортабельное жилье, которое подойдет как для семей, так для тех, кто намерен уединиться, сбежав от городского шума и суматохи, возводится в Киевском районе Одессы. Дома «Semila» в жилом массиве Дайберг – не просто выгодная инвестиция, а лучшее решение для полноценного проживания. Несмотря некую от отдаленность, рядом присутствует вся необходимая и полезная инфраструктура, а также удобная транспортная развязка.

В общей сложности комплекс насчитывает 14 одноэтажных домов. Выполняются они с ленточным фундаментом. Стены возводятся из газобетона, а у наружных стен есть дополнительное уплотнение для сохранности тепла. В качестве утеплителя используется минеральная вата. Для обустройства фасада используется декоративная штукатурка с последующей облицовкой из клинкерного кирпича.

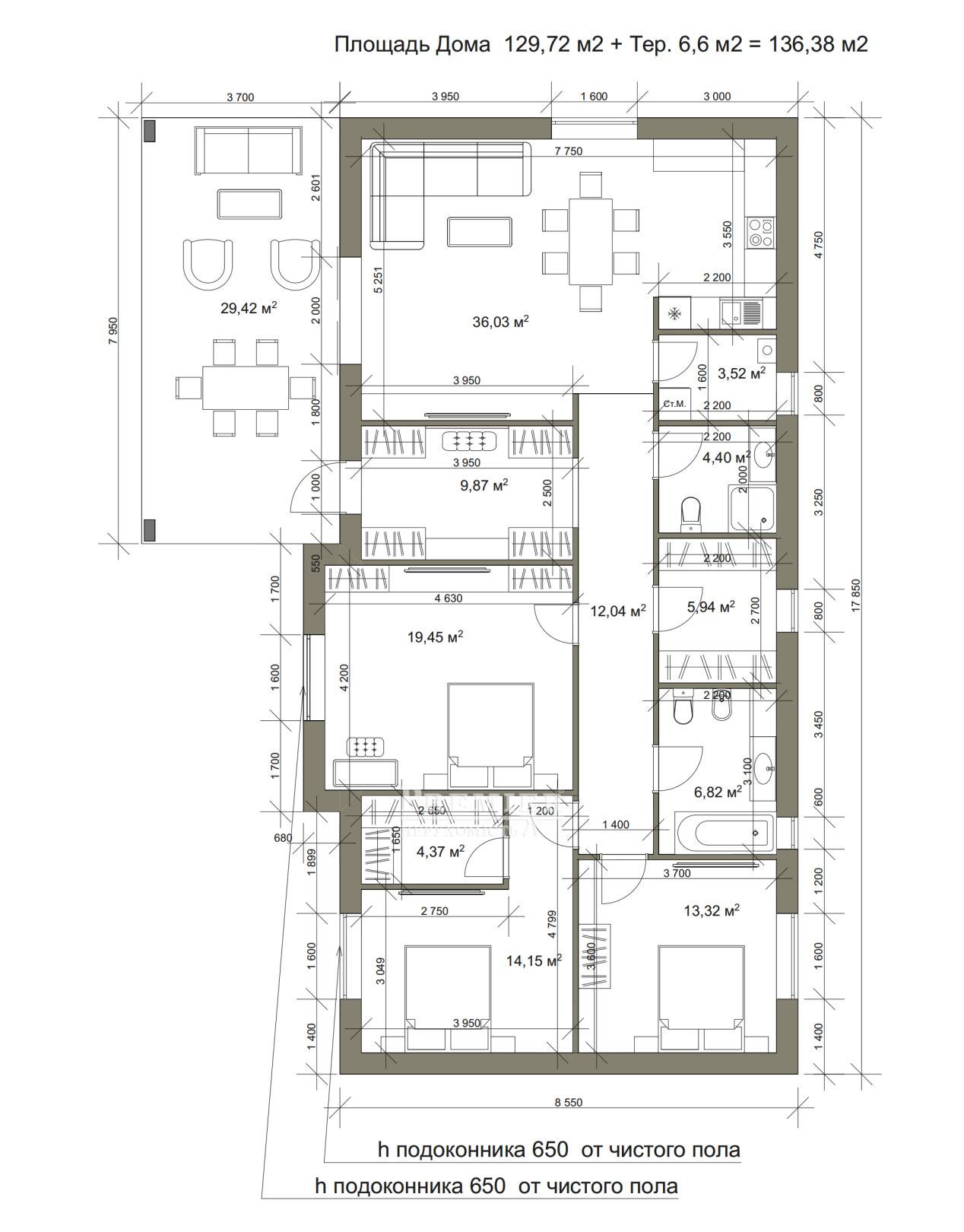
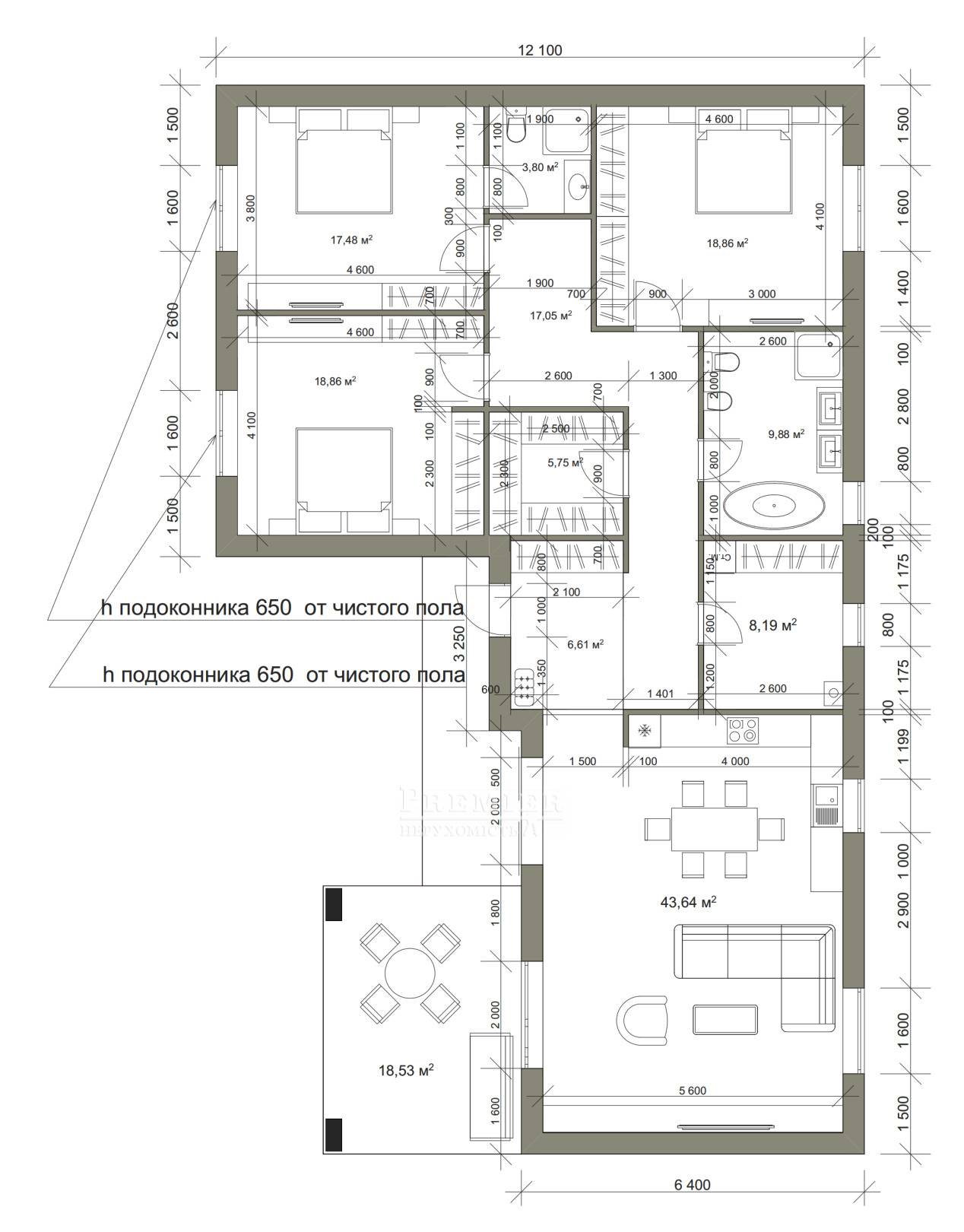
Минимальная площадь дома составляет 105 квадратных метров, а максимальная – 150 квадратных метров. Планировки раздельные, что позволяет удобнее обустроить жилое пространство. Высота потолков достигает 3 метра.

Система отопления автономная – тепло поставляется от газового котла посредством трубной разводки и отопительных приборов. Сохранность микроклимата обеспечивается за счет металлопластиковых окон, представленных пятикамерными профилями с двухкамерными стеклопакетами, включая мультифункциональное стекло.

У каждого дома есть свой закрытый двор с зоной для отдыха. На нем можно обустроить беседку, детскую площадку или что-нибудь еще в зависимости от площади участка.

Окончание строительства: 1 квартал 2023 года.

от 53 040
ГРН. / кв.м
USD
UAH
Компания "Премьер" является официальным партнером строительной компании. Объекты продаются без какой либо комиссии.
Контакты менеджеров по продаже
ул. Космонавтов, 32
Задать вопрос
Назначить осмотр
Посмотреть на карте
Дополнительные услуги